Address: 5607 OLD STERRETTANIA RD   Parcel: 33130569000700
Parcel Profile
Address5607 | OLD STERRETTANIA | RD
Street StatusPAVED
School DistrictMILLCREEK SCHOOL
Acreage2.0400
ClassificationR
Land Use CodeSINGLE FAMILY
Legal Description5607 OLD STERRETTANIA 2.04 AC
Square Feet1560
TopoLEVEL
UtilityALL PUBLIC
ZoningPlease contact your municipal zoning officer
Deed Book2013
Deed Page018264
2025 Tax Values
Land Value / Taxable39,700 / 39,700.00
Building Value / Taxable81,090 / 81,090.00
Total Value / Taxable120,790 / 120,790.00
Clean & GreenInactive
Homestead StatusInactive
Farmstead StatusInactive
Lerta Amount0
Lerta Expiration Year0
Residential Data
Card 1
     StyleOLD STYLE
     BasementFULL
     Year Built1900
     Exterior WallFRAME
     Total Living Area1560
     Full Baths1
     Half Baths1
     Fuel TypeGAS
     HeatingCENTRAL A/C
     Heating SystemFORCED AIR
     Stories2.0
     Total Bedrooms4
     Total Family Rooms1
     Total Rooms7
     Fireplaces1
Other Buildings & Yards
DescriptionBuiltWidthLengthArea
 FLAT BARN 1900 23 50 1150
Sales History
Sale DateTypePriceBook / PageOther Info
7/16/2013LAND & BUILDING02013 / 018264QUIT CLAIM DEED
6/28/2012LAND & BUILDING02012 / 017092QUIT CLAIM DEED
6/21/1985 01584 / 0407 



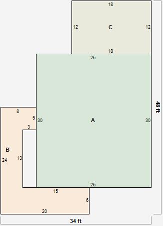
Parcel Sketches

Residential Card 1

Residential Card 1
AMAIN780 square feet
B OFP OPEN FRAME PORCH 225 square feet
C MA_PT CONC/MAS PATIO 216 square feet

Parcel Images

parcel photoparcel photo