Elected Officials
Courts
Departments
Initiatives
Open Government
About
Login / Register
Home
/
Property & Tax Records
/
Property Records
/
Property & Tax Search
/
Parcel Profile
/
Print View
Search for Another Parcel
Parcel Profile
Historical Card
Sketches
Photos
Tax Map
Taxes
Print View
Print This Page
Address: 5102 HEIDLER RD
Parcel: 33132374002600
Parcel Profile
Address
5102 | HEIDLER | RD
Street Status
PAVED
School District
MILLCREEK SCHOOL
Acreage
0.5103
Classification
R
Land Use Code
DWELLING W/ COMMERCIAL USE PRIMARY RES
Legal Description
5102 HEIDLER RD 120X213 IRR
Square Feet
2112
Topo
LEVEL
Utility
ALL PUBLIC
Zoning
Please contact your municipal zoning officer
Deed Book
1463
Deed Page
0768
2026 Tax Values
Land Value / Taxable
30,200 / 30,200.00
Building Value / Taxable
108,560 / 108,560.00
Total Value / Taxable
138,760 / 138,760.00
Clean & Green
Inactive
Homestead Status
Active
Farmstead Status
Inactive
Lerta Amount
0
Lerta Expiration Year
0
Residential Data
Card 1
Style
OLD STYLE
Basement
FULL
Year Built
1900
Exterior Wall
BRICK
Total Living Area
2112
Full Baths
1
Half Baths
2
Fuel Type
GAS
Heating
CENTRAL
Heating System
FORCED AIR
Stories
2.0
Total Bedrooms
4
Total Family Rooms
0
Total Rooms
8
Fireplaces
0
Other Buildings & Yards
Description
Built
Width
Length
Area
FRAME UTILITY SHED
1990
12
16
192
FRAME OR CB DETACHED GARAGE
2001
24
28
672
Sales History
Sale Date
Type
Price
Book / Page
Other Info
11/30/2007
LAND & BUILDING
0
1463 / 0768
QUIT CLAIM DEED
6/26/1995
0
0389 / 1772
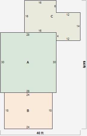
Parcel Sketches
Residential Card 1
A
MAIN
840 square feet
B
1S FR ONE STORY FRAME
432 square feet
C
WDDCK WOOD DECKS
424 square feet
Parcel Images
Please note:
this tab is for informational purposes only and may not show all delinquencies, see the Taxes tab for more accurate delinquent taxes due.