Elected Officials
Courts
Departments
Initiatives
Open Government
About
Login / Register
Home
/
Property & Tax Records
/
Property Records
/
Property & Tax Search
/
Parcel Profile
/
Print View
Search for Another Parcel
Parcel Profile
Historical Card
Sketches
Photos
Tax Map
Taxes
Print View
Print This Page
Address: 5301 MILLFAIR RD
Parcel: 33132571004412
Parcel Profile
Address
5301 | MILLFAIR | RD
Street Status
PAVED
School District
MILLCREEK SCHOOL
Acreage
0.5370
Classification
R
Land Use Code
SINGLE FAMILY
Legal Description
5301 MILLFAIR RD 149.08X157
Square Feet
696
Topo
LEVEL
Utility
ALL PUBLIC
Zoning
Please contact your municipal zoning officer
Deed Book
1564
Deed Page
1735
2026 Tax Values
Land Value / Taxable
36,500 / 36,500.00
Building Value / Taxable
93,100 / 93,100.00
Total Value / Taxable
129,600 / 129,600.00
Clean & Green
Inactive
Homestead Status
Active
Farmstead Status
Inactive
Lerta Amount
0
Lerta Expiration Year
0
Residential Data
Card 1
Style
BUNGALOW
Basement
FULL
Year Built
1930
Exterior Wall
ALUMINUM/VINYL
Total Living Area
696
Full Baths
1
Half Baths
0
Fuel Type
GAS
Heating
CENTRAL A/C
Heating System
FORCED AIR
Stories
1.0
Total Bedrooms
2
Total Family Rooms
0
Total Rooms
4
Fireplaces
0
Other Buildings & Yards
Description
Built
Width
Length
Area
FRAME OR CB DETACHED GARAGE
2001
40
60
2400
Sales History
Sale Date
Type
Price
Book / Page
Other Info
5/28/2009
LAND & BUILDING
130000
1564 / 1735
SPECIAL WARRANTY DEED
10/12/2000
LAND & BUILDING
47000
731 / 2209
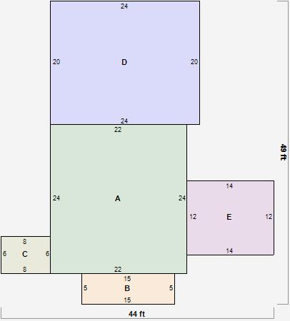
Parcel Sketches
Residential Card 1
A
MAIN
528 square feet
B
OFP OPEN FRAME PORCH
75 square feet
C
EFP ENCL FRAME PORCH
48 square feet
D
FR GR FRAME GARAGE
480 square feet
E
1S FR ONE STORY FRAME
168 square feet
Parcel Images
Please note:
this tab is for informational purposes only and may not show all delinquencies, see the Taxes tab for more accurate delinquent taxes due.