Elected Officials
Courts
Departments
Initiatives
Open Government
About
Login / Register
Home
/
Property & Tax Records
/
Property Records
/
Property & Tax Search
/
Parcel Profile
/
Print View
Search for Another Parcel
Parcel Profile
Historical Card
Sketches
Photos
Tax Map
Taxes
Print View
Print This Page
Address: 5715 STERRETTANIA RD
Parcel: 33134573000400
Parcel Profile
Address
5715 | STERRETTANIA | RD
Street Status
PAVED
School District
MILLCREEK SCHOOL
Acreage
1.5000
Classification
R
Land Use Code
SINGLE FAMILY
Legal Description
5715 STERRETTANIA RD 1.5 AC
Square Feet
4930
Topo
LEVEL
Utility
GAS | WELL | SEPTIC
Zoning
Please contact your municipal zoning officer
Deed Book
2010
Deed Page
028037
2026 Tax Values
Land Value / Taxable
37,800 / 37,800.00
Building Value / Taxable
288,200 / 288,200.00
Total Value / Taxable
326,000 / 326,000.00
Clean & Green
Inactive
Homestead Status
Inactive
Farmstead Status
Inactive
Lerta Amount
0
Lerta Expiration Year
0
Residential Data
Card 1
Style
OLD STYLE
Basement
FULL
Year Built
1896
Exterior Wall
BRICK
Total Living Area
4930
Full Baths
3
Half Baths
1
Fuel Type
GAS
Heating
CENTRAL A/C
Heating System
HOT WATER
Stories
2.0
Total Bedrooms
5
Total Family Rooms
1
Total Rooms
11
Fireplaces
5
Other Buildings & Yards
Description
Built
Width
Length
Area
FRAME UTILITY SHED
1970
14
15
210
CONCRET PATIO, DETACHED
1990
8
12
96
Sales History
Sale Date
Type
Price
Book / Page
Other Info
11/8/2010
LAND & BUILDING
340000
2010 / 028037
DEED
8/20/2004
LAND & BUILDING
260000
1166 / 0219
WARRANTY/SURVIVORSHIP DEED
7/1/2004
LAND & BUILDING
0
1151 / 1168
SHERIFF'S DED
5/8/1986
0
1627 / 0590
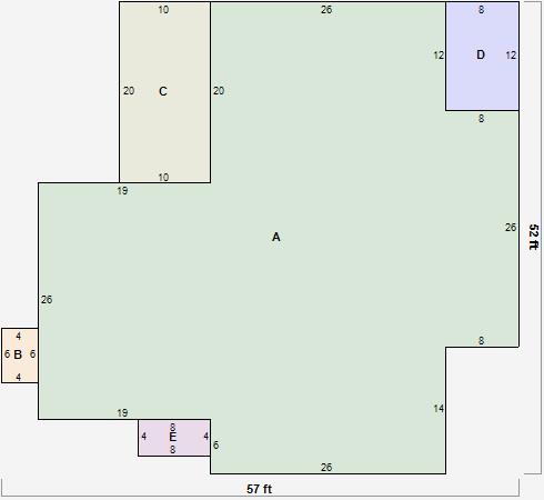
Parcel Sketches
Residential Card 1
A
MAIN
2054 square feet
B
FR UT FRAME UTILITY BUILDING
24 square feet
C
OFP OPEN FRAME PORCH
200 square feet
D
EFP ENCL FRAME PORCH
96 square feet
E
MA STOOP/TERR MAS STOOP
32 square feet
Parcel Images
Please note:
this tab is for informational purposes only and may not show all delinquencies, see the Taxes tab for more accurate delinquent taxes due.