Elected Officials
Courts
Departments
Initiatives
Open Government
About
Login / Register
Home
/
Property & Tax Records
/
Property Records
/
Property & Tax Search
/
Parcel Profile
/
Print View
Search for Another Parcel
Parcel Profile
Historical Card
Sketches
Photos
Tax Map
Taxes
Print View
Print This Page
Address: 5437 CHERRY ST EXT
Parcel: 33146508000400
Parcel Profile
Address
5437 | CHERRY ST | EXT
Street Status
PAVED
School District
MILLCREEK SCHOOL
Acreage
3.5600
Classification
R
Land Use Code
MULTIPLE DWELLINGS
Legal Description
5437 CHERRY ST EXT 3.56 AC
Square Feet
5002
Topo
LEVEL
Utility
ALL PUBLIC
Zoning
Please contact your municipal zoning officer
Deed Book
0600
Deed Page
2203
2026 Tax Values
Land Value / Taxable
60,800 / 60,800.00
Building Value / Taxable
202,500 / 202,500.00
Total Value / Taxable
263,300 / 263,300.00
Clean & Green
Inactive
Homestead Status
Active
Farmstead Status
Inactive
Lerta Amount
0
Lerta Expiration Year
0
Residential Data
Card 1
Style
OLD STYLE
Basement
FULL
Year Built
1930
Exterior Wall
ALUMINUM/VINYL
Total Living Area
3110
Full Baths
2
Half Baths
2
Fuel Type
GAS
Heating
CENTRAL A/C
Heating System
FORCED AIR
Stories
2.0
Total Bedrooms
3
Total Family Rooms
0
Total Rooms
8
Fireplaces
1
Card 2
Style
OLD STYLE
Basement
NONE
Year Built
1930
Exterior Wall
FRAME
Total Living Area
1892
Full Baths
1
Half Baths
0
Fuel Type
GAS
Heating
CENTRAL A/C
Heating System
FORCED AIR
Stories
2.0
Total Bedrooms
2
Total Family Rooms
0
Total Rooms
4
Fireplaces
0
Other Buildings & Yards
Description
Built
Width
Length
Area
FRAME OR CB DETACHED GARAGE
1999
24
40
960
Sales History
Sale Date
Type
Price
Book / Page
Other Info
11/19/1998
0
0600 / 2203
11/17/1998
LAND & BUILDING
0
600 / 2192
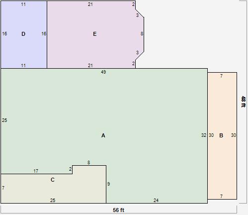
Parcel Sketches
Residential Card 1
A
MAIN
1377 square feet
B
OFP OPEN FRAME PORCH
210 square feet
C
OFP OPEN FRAME PORCH
191 square feet
D
EFP ENCL FRAME PORCH
176 square feet
E
1SMAS MASONRY
356 square feet
Residential Card 2
A
MAIN
420 square feet
B
FR GR FRAME GARAGE 1S FR ONE STORY FRAME
540 square feet
C
1S FR ONE STORY FRAME
512 square feet
Parcel Images
Please note:
this tab is for informational purposes only and may not show all delinquencies, see the Taxes tab for more accurate delinquent taxes due.