Elected Officials
Courts
Departments
Initiatives
Open Government
About
Login / Register
Home
/
Property & Tax Records
/
Property Records
/
Property & Tax Search
/
Parcel Profile
/
Print View
Search for Another Parcel
Parcel Profile
Historical Card
Sketches
Photos
Tax Map
Taxes
Print View
Print This Page
Address: 5440 HENDERSON RD
Parcel: 33150639000100
Parcel Profile
Address
5440 | HENDERSON | RD
Street Status
PAVED | SIDEWALK
School District
MILLCREEK SCHOOL
Acreage
0.6550
Classification
R
Land Use Code
SINGLE FAMILY
Legal Description
5440 HENDERSON RD 105 X 353.94 IRR
Square Feet
1974
Topo
LEVEL
Utility
PUBLIC WATER | GAS | SEPTIC
Zoning
Please contact your municipal zoning officer
Deed Book
2016
Deed Page
000764
2026 Tax Values
Land Value / Taxable
31,100 / 31,100.00
Building Value / Taxable
204,300 / 204,300.00
Total Value / Taxable
235,400 / 235,400.00
Clean & Green
Inactive
Homestead Status
Active
Farmstead Status
Inactive
Lerta Amount
0
Lerta Expiration Year
0
Residential Data
Card 1
Style
CONVENTIONAL
Basement
FULL
Year Built
2016
Exterior Wall
ALUMINUM/VINYL
Total Living Area
1974
Full Baths
2
Half Baths
1
Fuel Type
GAS
Heating
CENTRAL A/C
Heating System
FORCED AIR
Stories
2.0
Total Bedrooms
3
Total Family Rooms
1
Total Rooms
7
Fireplaces
1
Other Buildings & Yards
No OBY Data Found
Sales History
Sale Date
Type
Price
Book / Page
Other Info
1/13/2016
LAND
0
2016 / 000764
DEED
9/13/1976
0
1236 / 0227
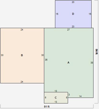
Parcel Sketches
Residential Card 1
A
MAIN
987 square feet
B
FR GR FRAME GARAGE
720 square feet
C
OMP OPEN MASONRY PORCH
78 square feet
D
MA_PT CONC/MAS PATIO
300 square feet
Parcel Images
No images found for this parcel.
Please note:
this tab is for informational purposes only and may not show all delinquencies, see the Taxes tab for more accurate delinquent taxes due.