Elected Officials
Courts
Departments
Initiatives
Open Government
About
Login / Register
Home
/
Property & Tax Records
/
Property Records
/
Property & Tax Search
/
Parcel Profile
/
Print View
Search for Another Parcel
Parcel Profile
Historical Card
Sketches
Photos
Tax Map
Taxes
Print View
Print This Page
Address: 5762 APPLEMAN RD
Parcel: 33154487002600
Parcel Profile
Address
5762 | APPLEMAN | RD
Street Status
PAVED
School District
MILLCREEK SCHOOL
Acreage
0.8000
Classification
F
Land Use Code
20 - 79.99 ACRES
Legal Description
5762 APPLEMAN RD LOT F 140 X 273.72 IRR | 0.88 AC GROSS | APPROX. FRONTAGE, SURVEYOR DOESN'T CLOSE
Square Feet
1452
Topo
LEVEL
Utility
WELL | SEPTIC
Zoning
Please contact your municipal zoning officer
Deed Book
2019
Deed Page
001649
2025 Tax Values
Land Value / Taxable
25,700 / 25,700.00
Building Value / Taxable
64,100 / 64,100.00
Total Value / Taxable
89,800 / 89,800.00
Clean & Green
Inactive
Homestead Status
Active
Farmstead Status
Inactive
Lerta Amount
0
Lerta Expiration Year
0
Residential Data
Card 1
Style
BUNGALOW
Basement
FULL
Year Built
1900
Exterior Wall
STUCCO
Total Living Area
1452
Full Baths
1
Half Baths
0
Fuel Type
COAL/WOOD
Heating
NON CENTRAL
Heating System
NONE
Stories
1.0
Total Bedrooms
2
Total Family Rooms
0
Total Rooms
5
Fireplaces
0
Other Buildings & Yards
Description
Built
Width
Length
Area
FLAT BARN
1934
30
40
1200
FRAME OR CB DETACHED GARAGE
1934
24
56
1344
Sales History
Sale Date
Type
Price
Book / Page
Other Info
1/29/2019
LAND & BUILDING
0
2019 / 001649
QUIT CLAIM DEED
4/17/2013
LAND & BUILDING
40000
2013 / 009200
DEED
3/15/2010
LAND & BUILDING
145000
2010 / 005463
DEED
4/8/1982
LAND & BUILDING
0
1452 / 0255
AFFIDAVIT
4/8/1982
0
1452 / 0255
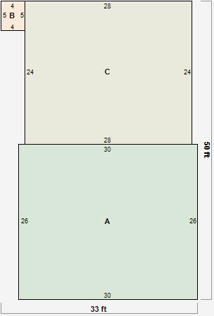
Parcel Sketches
Residential Card 1
A
MAIN
780 square feet
B
EFP ENCL FRAME PORCH
20 square feet
C
UNFIN BSMT BASEMENT UNFINISHED 1S FR ONE STORY FRAME
672 square feet
Parcel Images