Elected Officials
Courts
Departments
Initiatives
Open Government
About
Login / Register
Home
/
Property & Tax Records
/
Property Records
/
Property & Tax Search
/
Parcel Profile
/
Print View
Search for Another Parcel
Parcel Profile
Historical Card
Sketches
Photos
Tax Map
Taxes
Print View
Print This Page
Address: 5748 OLD FRENCH RD
Parcel: 33161630000201
Parcel Profile
Address
5748 | OLD FRENCH | RD
Street Status
PAVED
School District
MILLCREEK SCHOOL
Acreage
4.4200
Classification
R
Land Use Code
SINGLE FAMILY
Legal Description
5748 OLD FRENCH RD 4.475 AC
Square Feet
5770
Topo
LEVEL
Utility
WELL | SEPTIC
Zoning
Please contact your municipal zoning officer
Deed Book
0901
Deed Page
1580
2026 Tax Values
Land Value / Taxable
46,300 / 46,300.00
Building Value / Taxable
272,600 / 272,600.00
Total Value / Taxable
318,900 / 318,900.00
Clean & Green
Inactive
Homestead Status
Inactive
Farmstead Status
Inactive
Lerta Amount
0
Lerta Expiration Year
0
Residential Data
Card 1
Style
OLD STYLE
Basement
FULL
Year Built
1900
Exterior Wall
ALUMINUM/VINYL
Total Living Area
3694
Full Baths
2
Half Baths
0
Fuel Type
GAS
Heating
CENTRAL
Heating System
FORCED AIR
Stories
2.0
Total Bedrooms
4
Total Family Rooms
1
Total Rooms
9
Fireplaces
1
Card 2
Style
OLD STYLE
Basement
FULL
Year Built
1900
Exterior Wall
FRAME
Total Living Area
2076
Full Baths
2
Half Baths
0
Fuel Type
GAS
Heating
CENTRAL
Heating System
FORCED AIR
Stories
2.0
Total Bedrooms
4
Total Family Rooms
0
Total Rooms
9
Fireplaces
0
Other Buildings & Yards
Description
Built
Width
Length
Area
FRAME OR CB DETACHED GARAGE
1900
14
22
308
CARPORT
1900
12
21
252
FRAME OR CB DETACHED GARAGE
1900
18
35
630
FRAME UTILITY SHED
1900
48
15
720
Sales History
Sale Date
Type
Price
Book / Page
Other Info
7/18/2002
LAND & BUILDING
0
0901 / 1580
QUIT CLAIM DEED
12/30/1998
LAND & BUILDING
300000
609 / 852
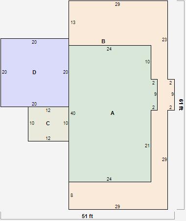
Parcel Sketches
Residential Card 1
A
MAIN
1632 square feet
B
OFP OPEN FRAME PORCH
136 square feet
C
1S FR ONE STORY FRAME
270 square feet
D
EFP ENCL FRAME PORCH
165 square feet
E
1S FR ONE STORY FRAME
160 square feet
Residential Card 2
A
MAIN
978 square feet
B
WDDCK WOOD DECKS
809 square feet
C
1S FR ONE STORY FRAME
120 square feet
D
FR GR FRAME GARAGE
400 square feet
Parcel Images
Please note:
this tab is for informational purposes only and may not show all delinquencies, see the Taxes tab for more accurate delinquent taxes due.