Elected Officials
Courts
Departments
Initiatives
Open Government
About
Login / Register
Home
/
Property & Tax Records
/
Property Records
/
Property & Tax Search
/
Parcel Profile
/
Print View
Search for Another Parcel
Parcel Profile
Historical Card
Sketches
Photos
Tax Map
Taxes
Print View
Print This Page
Address: 5607 PILGRIM DR
Parcel: 33162504000100
Parcel Profile
Address
5607 | PILGRIM | DR
Street Status
PAVED
School District
MILLCREEK SCHOOL
Acreage
0.7707
Classification
R
Land Use Code
SINGLE FAMILY
Legal Description
5607 PILGRIM DR 220.15X234.18
Square Feet
807
Topo
LEVEL
Utility
ALL PUBLIC
Zoning
Please contact your municipal zoning officer
Deed Book
0702
Deed Page
1772
2026 Tax Values
Land Value / Taxable
34,300 / 34,300.00
Building Value / Taxable
37,900 / 37,900.00
Total Value / Taxable
72,200 / 72,200.00
Clean & Green
Inactive
Homestead Status
Active
Farmstead Status
Inactive
Lerta Amount
0
Lerta Expiration Year
0
Residential Data
Card 1
Style
BUNGALOW
Basement
FULL
Year Built
1935
Exterior Wall
COMPOSITION
Total Living Area
807
Full Baths
1
Half Baths
0
Fuel Type
GAS
Heating
CENTRAL
Heating System
HOT WATER
Stories
1.0
Total Bedrooms
2
Total Family Rooms
0
Total Rooms
4
Fireplaces
0
Other Buildings & Yards
No OBY Data Found
Sales History
Sale Date
Type
Price
Book / Page
Other Info
5/10/2000
LAND & BUILDING
60000
0702 / 1772
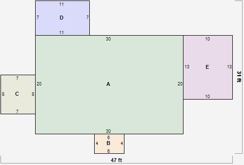
Parcel Sketches
Residential Card 1
A
MAIN
600 square feet
B
MA STOOP/TERR MAS STOOP
24 square feet
C
EFP ENCL FRAME PORCH
56 square feet
D
1S FR ONE STORY FRAME
77 square feet
E
1S FR ONE STORY FRAME
130 square feet
Parcel Images
Please note:
this tab is for informational purposes only and may not show all delinquencies, see the Taxes tab for more accurate delinquent taxes due.