Elected Officials
Courts
Departments
Initiatives
Open Government
About
Login / Register
Home
/
Property & Tax Records
/
Property Records
/
Property & Tax Search
/
Parcel Profile
/
Print View
Search for Another Parcel
Parcel Profile
Historical Card
Sketches
Photos
Tax Map
Taxes
Print View
Print This Page
Address: 1717 BERRY ST
Parcel: 33165597000501
Parcel Profile
Address
1717 | BERRY | ST
Street Status
PAVED
School District
MILLCREEK SCHOOL
Acreage
0.3788
Classification
R
Land Use Code
TWO FAMILY
Legal Description
1717 BERRY ST 100 X 165
Square Feet
2400
Topo
LEVEL
Utility
ALL PUBLIC
Zoning
Please contact your municipal zoning officer
Deed Book
1215
Deed Page
2392
2025 Tax Values
Land Value / Taxable
20,100 / 20,100.00
Building Value / Taxable
89,910 / 89,910.00
Total Value / Taxable
110,010 / 110,010.00
Clean & Green
Inactive
Homestead Status
Inactive
Farmstead Status
Inactive
Lerta Amount
0
Lerta Expiration Year
0
Residential Data
Card 1
Style
OLD STYLE
Basement
FULL
Year Built
1936
Exterior Wall
COMPOSITION
Total Living Area
2400
Full Baths
2
Half Baths
2
Fuel Type
GAS
Heating
CENTRAL
Heating System
FORCED AIR
Stories
2.0
Total Bedrooms
6
Total Family Rooms
0
Total Rooms
12
Fireplaces
0
Other Buildings & Yards
No OBY Data Found
Sales History
Sale Date
Type
Price
Book / Page
Other Info
3/8/2005
LAND & BUILDING
77800
1215 / 2392
WARRANTY/SURVIVORSHIP DEED
8/13/2003
LAND & BUILDING
0
1050 / 0035
QUIT CLAIM DEED
1/28/1972
0
1061 / 0189
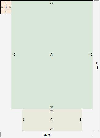
Parcel Sketches
Residential Card 1
A
MAIN
1200 square feet
B
OFP OPEN FRAME PORCH
20 square feet
C
EFP ENCL FRAME PORCH
176 square feet
Parcel Images