Elected Officials
Courts
Departments
Initiatives
Open Government
About
Login / Register
Home
/
Property & Tax Records
/
Property Records
/
Property & Tax Search
/
Parcel Profile
/
Print View
Search for Another Parcel
Parcel Profile
Historical Card
Sketches
Photos
Tax Map
Taxes
Print View
Print This Page
Address: 1630 BIEBEL AVE
Parcel: 33165609000900
Parcel Profile
Address
1630 | BIEBEL | AVE
Street Status
PAVED
School District
MILLCREEK SCHOOL
Acreage
0.1894
Classification
R
Land Use Code
SINGLE FAMILY
Legal Description
1630 BIEBEL AVE 50X165
Square Feet
1408
Topo
LEVEL
Utility
ALL PUBLIC
Zoning
Please contact your municipal zoning officer
Deed Book
0927
Deed Page
0373
2026 Tax Values
Land Value / Taxable
18,200 / 18,200.00
Building Value / Taxable
88,020 / 88,020.00
Total Value / Taxable
106,220 / 106,220.00
Clean & Green
Inactive
Homestead Status
Active
Farmstead Status
Inactive
Lerta Amount
0
Lerta Expiration Year
0
Residential Data
Card 1
Style
CONVENTIONAL
Basement
FULL
Year Built
1900
Exterior Wall
ALUMINUM/VINYL
Total Living Area
1408
Full Baths
1
Half Baths
0
Fuel Type
GAS
Heating
CENTRAL
Heating System
FORCED AIR
Stories
2.0
Total Bedrooms
3
Total Family Rooms
0
Total Rooms
6
Fireplaces
0
Other Buildings & Yards
No OBY Data Found
Sales History
Sale Date
Type
Price
Book / Page
Other Info
10/1/2002
LAND & BUILDING
89900
0927 / 0373
AFFIDAVIT
9/21/1992
0
0231 / 0630
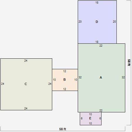
Parcel Sketches
Residential Card 1
A
MAIN
704 square feet
B
EFP ENCL FRAME PORCH
120 square feet
C
FR GR FRAME GARAGE
576 square feet
D
OFP OPEN FRAME PORCH
360 square feet
E
OFP OPEN FRAME PORCH
60 square feet
Parcel Images
Please note:
this tab is for informational purposes only and may not show all delinquencies, see the Taxes tab for more accurate delinquent taxes due.