Elected Officials
Courts
Departments
Initiatives
Open Government
About
Login / Register
Home
/
Property & Tax Records
/
Property Records
/
Property & Tax Search
/
Parcel Profile
/
Print View
Search for Another Parcel
Parcel Profile
Historical Card
Sketches
Photos
Tax Map
Taxes
Print View
Print This Page
Address: 5930 MERIDIAN DR
Parcel: 33167584001700
Parcel Profile
Address
5930 | MERIDIAN | DR
Street Status
PAVED
School District
MILLCREEK SCHOOL
Acreage
0.3530
Classification
R
Land Use Code
SINGLE FAMILY
Legal Description
5930 MERIDIAN DR 130X150IR
Square Feet
1340
Topo
BELOW STREET
Utility
ALL PUBLIC
Zoning
Please contact your municipal zoning officer
Deed Book
1550
Deed Page
1148
2026 Tax Values
Land Value / Taxable
20,100 / 20,100.00
Building Value / Taxable
77,300 / 77,300.00
Total Value / Taxable
97,400 / 97,400.00
Clean & Green
Inactive
Homestead Status
Inactive
Farmstead Status
Inactive
Lerta Amount
0
Lerta Expiration Year
0
Residential Data
Card 1
Style
BUNGALOW
Basement
PART
Year Built
1910
Exterior Wall
ALUMINUM/VINYL
Total Living Area
1340
Full Baths
1
Half Baths
0
Fuel Type
GAS
Heating
CENTRAL
Heating System
FORCED AIR
Stories
1.0
Total Bedrooms
3
Total Family Rooms
0
Total Rooms
7
Fireplaces
0
Other Buildings & Yards
No OBY Data Found
Sales History
Sale Date
Type
Price
Book / Page
Other Info
3/23/2009
LAND & BUILDING
72900
1550 / 1148
DEED
12/17/2008
LAND & BUILDING
0
1535 / 2358
SHERIFF'S DED
7/14/2006
LAND & BUILDING
118000
1344 / 1480
WARRANTY/SURVIVORSHIP DEED
12/30/1999
LAND & BUILDING
80000
681 / 1487
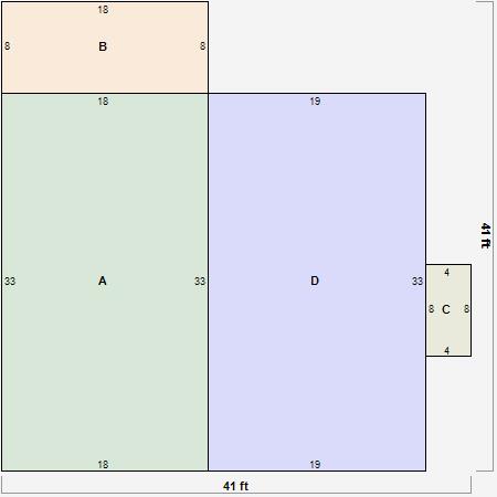
Parcel Sketches
Residential Card 1
A
MAIN
594 square feet
B
OFP OPEN FRAME PORCH
144 square feet
C
MA STOOP/TERR MAS STOOP
32 square feet
D
1S FR ONE STORY FRAME
627 square feet
Parcel Images
Please note:
this tab is for informational purposes only and may not show all delinquencies, see the Taxes tab for more accurate delinquent taxes due.