Elected Officials
Courts
Departments
Initiatives
Open Government
About
Login / Register
Home
/
Property & Tax Records
/
Property Records
/
Property & Tax Search
/
Parcel Profile
/
Print View
Search for Another Parcel
Parcel Profile
Historical Card
Sketches
Photos
Tax Map
Taxes
Print View
Print This Page
Address: 6005 GRUBB RD
Parcel: 33175577005900
Parcel Profile
Address
6005 | GRUBB | RD
Street Status
PAVED
School District
MILLCREEK SCHOOL
Acreage
0.8884
Classification
R
Land Use Code
SINGLE FAMILY
Legal Description
6005 GRUBB RD 177X232 IRR
Square Feet
1776
Topo
LEVEL | ROLLING
Utility
GAS | WELL | SEPTIC
Zoning
Please contact your municipal zoning officer
Deed Book
2012
Deed Page
014941
2025 Tax Values
Land Value / Taxable
34,500 / 34,500.00
Building Value / Taxable
55,900 / 55,900.00
Total Value / Taxable
90,400 / 90,400.00
Clean & Green
Inactive
Homestead Status
Inactive
Farmstead Status
Inactive
Lerta Amount
0
Lerta Expiration Year
0
Residential Data
Card 1
Style
OLD STYLE
Basement
FULL
Year Built
1880
Exterior Wall
ALUMINUM/VINYL
Total Living Area
1776
Full Baths
2
Half Baths
0
Fuel Type
GAS
Heating
CENTRAL
Heating System
FORCED AIR
Stories
2.0
Total Bedrooms
3
Total Family Rooms
0
Total Rooms
5
Fireplaces
0
Other Buildings & Yards
No OBY Data Found
Sales History
Sale Date
Type
Price
Book / Page
Other Info
6/8/2012
LAND & BUILDING
0
2012 / 014941
SPECIAL WARRANTY DEED
2/6/1996
LAND & BUILDING
50000
423 / 640
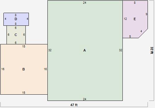
Parcel Sketches
Residential Card 1
A
MAIN
768 square feet
B
1S FR ONE STORY FRAME
240 square feet
C
EFP ENCL FRAME PORCH
36 square feet
D
WDDCK WOOD DECKS
32 square feet
E
WDDCK WOOD DECKS
92 square feet
Parcel Images