Elected Officials
Courts
Departments
Initiatives
Open Government
About
Login / Register
Home
/
Property & Tax Records
/
Property Records
/
Property & Tax Search
/
Parcel Profile
/
Print View
Search for Another Parcel
Parcel Profile
Historical Card
Sketches
Photos
Tax Map
Taxes
Print View
Print This Page
Address: 5853 GRUBB RD
Parcel: 33175577006300
Parcel Profile
Address
5853 | GRUBB | RD
Street Status
PAVED
School District
MILLCREEK SCHOOL
Acreage
0.9690
Classification
R
Land Use Code
SINGLE FAMILY
Legal Description
5853 GRUBB RD LOT B 100.16 X 342.49 IRR
Square Feet
1351
Topo
LEVEL | ROLLING
Utility
GAS | WELL | SEPTIC
Zoning
Please contact your municipal zoning officer
Deed Book
2015
Deed Page
020091
2026 Tax Values
Land Value / Taxable
35,400 / 35,400.00
Building Value / Taxable
69,220 / 69,220.00
Total Value / Taxable
104,620 / 104,620.00
Clean & Green
Inactive
Homestead Status
Active
Farmstead Status
Inactive
Lerta Amount
0
Lerta Expiration Year
0
Residential Data
Card 1
Style
BUNGALOW
Basement
FULL
Year Built
1927
Exterior Wall
ALUMINUM/VINYL
Total Living Area
1351
Full Baths
1
Half Baths
0
Fuel Type
GAS
Heating
CENTRAL
Heating System
HOT WATER
Stories
1.0
Total Bedrooms
2
Total Family Rooms
0
Total Rooms
4
Fireplaces
1
Other Buildings & Yards
Description
Built
Width
Length
Area
FRAME OR CB DETACHED GARAGE
1940
20
24
480
Sales History
Sale Date
Type
Price
Book / Page
Other Info
9/14/2015
LAND & BUILDING
105000
2015 / 020091
SPECIAL WARRANTY DEED
10/30/2002
LAND & BUILDING
0
0939 / 0498
WARRANTY/SURVIVORSHIP DEED
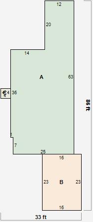
Parcel Sketches
Residential Card 1
A
MAIN
1351 square feet
B
EFP ENCL FRAME PORCH
368 square feet
C
MA STOOP/TERR MAS STOOP
16 square feet
Parcel Images
Please note:
this tab is for informational purposes only and may not show all delinquencies, see the Taxes tab for more accurate delinquent taxes due.