Elected Officials
Courts
Departments
Initiatives
Open Government
About
Login / Register
Home
/
Property & Tax Records
/
Property Records
/
Property & Tax Search
/
Parcel Profile
/
Print View
Search for Another Parcel
Parcel Profile
Historical Card
Sketches
Photos
Tax Map
Taxes
Print View
Print This Page
Address: 4056 HERSHEY RD
Parcel: 33182577005400
Parcel Profile
Address
4056 | HERSHEY | RD
Street Status
PAVED
School District
MILLCREEK SCHOOL
Acreage
0.7800
Classification
R
Land Use Code
SINGLE FAMILY
Legal Description
4056 HERSHEY RD 255X190 IR
Square Feet
2418
Topo
LEVEL | ROLLING
Utility
GAS | WELL | SEPTIC
Zoning
Please contact your municipal zoning officer
Deed Book
2025
Deed Page
020496
2026 Tax Values
Land Value / Taxable
33,200 / 33,200.00
Building Value / Taxable
235,200 / 235,200.00
Total Value / Taxable
268,400 / 268,400.00
Clean & Green
Inactive
Homestead Status
Inactive
Farmstead Status
Inactive
Lerta Amount
0
Lerta Expiration Year
0
Residential Data
Card 1
Style
RAISED RANCH
Basement
CRAWL
Year Built
1900
Exterior Wall
ALUMINUM/VINYL
Total Living Area
2418
Full Baths
2
Half Baths
1
Fuel Type
GAS
Heating
CENTRAL A/C
Heating System
FORCED AIR
Stories
1.0
Total Bedrooms
3
Total Family Rooms
2
Total Rooms
5
Fireplaces
2
Other Buildings & Yards
No OBY Data Found
Sales History
Sale Date
Type
Price
Book / Page
Other Info
11/17/2025
LAND & BUILDING
505000
2025 / 020496
SPECIAL WARRANTY DEED
10/15/2021
LAND & BUILDING
80000
2021 / 027717
SPECIAL WARRANTY DEED
1/5/1995
LAND & BUILDING
23900
0409 / 1522
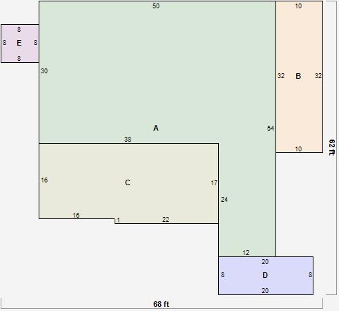
Parcel Sketches
Residential Card 1
A
MAIN
1788 square feet
B
MA_PT CONC/MAS PATIO
320 square feet
C
FR GR FRAME GARAGE 1S FR ONE STORY FRAME
630 square feet
D
MA_PT CONC/MAS PATIO
160 square feet
E
WDDCK WOOD DECKS
64 square feet
Parcel Images
Please note:
this tab is for informational purposes only and may not show all delinquencies, see the Taxes tab for more accurate delinquent taxes due.