Elected Officials
Courts
Departments
Initiatives
Open Government
About
Login / Register
Home
/
Property & Tax Records
/
Property Records
/
Property & Tax Search
/
Parcel Profile
/
Print View
Search for Another Parcel
Parcel Profile
Historical Card
Sketches
Photos
Tax Map
Taxes
Print View
Print This Page
Address: 6023 SPIRES DR
Parcel: 33188588000600
Parcel Profile
Address
6023 | SPIRES | DR
Street Status
PAVED
School District
MILLCREEK SCHOOL
Acreage
0.3812
Classification
R
Land Use Code
SINGLE FAMILY
Legal Description
6023 SPIRES DR 123X135
Square Feet
800
Topo
LEVEL
Utility
ALL PUBLIC
Zoning
Please contact your municipal zoning officer
Deed Book
0598
Deed Page
0361
2025 Tax Values
Land Value / Taxable
20,600 / 20,600.00
Building Value / Taxable
50,030 / 50,030.00
Total Value / Taxable
70,630 / 70,630.00
Clean & Green
Inactive
Homestead Status
Active
Farmstead Status
Inactive
Lerta Amount
0
Lerta Expiration Year
0
Residential Data
Card 1
Style
BUNGALOW
Basement
FULL
Year Built
1931
Exterior Wall
ALUMINUM/VINYL
Total Living Area
800
Full Baths
1
Half Baths
0
Fuel Type
GAS
Heating
CENTRAL A/C
Heating System
FORCED AIR
Stories
1.0
Total Bedrooms
2
Total Family Rooms
0
Total Rooms
5
Fireplaces
0
Other Buildings & Yards
Description
Built
Width
Length
Area
FRAME OR CB DETACHED GARAGE
1931
21
20
420
Sales History
Sale Date
Type
Price
Book / Page
Other Info
11/4/1998
0
0598 / 0361
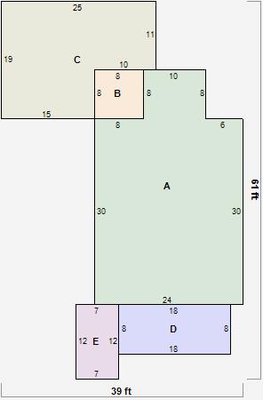
Parcel Sketches
Residential Card 1
A
MAIN
800 square feet
B
EFP ENCL FRAME PORCH
64 square feet
C
WDDCK WOOD DECKS
395 square feet
D
OFP OPEN FRAME PORCH
144 square feet
E
WDDCK WOOD DECKS
84 square feet
Parcel Images