Elected Officials
Courts
Departments
Initiatives
Open Government
About
Login / Register
Home
/
Property & Tax Records
/
Property Records
/
Property & Tax Search
/
Parcel Profile
/
Print View
Search for Another Parcel
Parcel Profile
Historical Card
Sketches
Photos
Tax Map
Taxes
Print View
Print This Page
Address: 6153 MERIDIAN DR
Parcel: 33188590000800
Parcel Profile
Address
6153 | MERIDIAN | DR
Street Status
PAVED
School District
MILLCREEK SCHOOL
Acreage
0.4040
Classification
R
Land Use Code
SINGLE FAMILY
Legal Description
6153 MERIDIAN DR 110X160
Square Feet
1243
Topo
LEVEL
Utility
ALL PUBLIC
Zoning
Please contact your municipal zoning officer
Deed Book
2018
Deed Page
016883
2026 Tax Values
Land Value / Taxable
21,000 / 21,000.00
Building Value / Taxable
67,900 / 67,900.00
Total Value / Taxable
88,900 / 88,900.00
Clean & Green
Inactive
Homestead Status
Active
Farmstead Status
Inactive
Lerta Amount
0
Lerta Expiration Year
0
Residential Data
Card 1
Style
BUNGALOW
Basement
FULL
Year Built
1935
Exterior Wall
FRAME
Total Living Area
1243
Full Baths
1
Half Baths
0
Fuel Type
GAS
Heating
CENTRAL
Heating System
FORCED AIR
Stories
1.0
Total Bedrooms
3
Total Family Rooms
0
Total Rooms
5
Fireplaces
0
Other Buildings & Yards
No OBY Data Found
Sales History
Sale Date
Type
Price
Book / Page
Other Info
8/17/2018
LAND & BUILDING
52000
2018 / 016883
DEED
8/28/2000
LAND & BUILDING
73700
722 / 2317
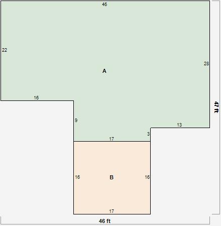
Parcel Sketches
Residential Card 1
A
MAIN
1243 square feet
B
FR GR FRAME GARAGE
272 square feet
Parcel Images
Please note:
this tab is for informational purposes only and may not show all delinquencies, see the Taxes tab for more accurate delinquent taxes due.