Elected Officials
Courts
Departments
Initiatives
Open Government
About
Login / Register
Home
/
Property & Tax Records
/
Property Records
/
Property & Tax Search
/
Parcel Profile
/
Print View
Search for Another Parcel
Parcel Profile
Historical Card
Sketches
Photos
Tax Map
Taxes
Print View
Print This Page
Address: 2430 E CENTER ST
Parcel: 34003003000500
Parcel Profile
Address
2430 | E | CENTER | ST
Street Status
PAVED
School District
FORT LEBOEUF SCHOOL
Acreage
0.4860
Classification
R
Land Use Code
SINGLE FAMILY
Legal Description
2430 E CENTER ST 112.2 X 189.5
Square Feet
1861
Topo
LEVEL
Utility
GAS | WELL | SEPTIC
Zoning
Please contact your municipal zoning officer
Deed Book
2023
Deed Page
017264
2025 Tax Values
Land Value / Taxable
21,400 / 21,400.00
Building Value / Taxable
78,000 / 78,000.00
Total Value / Taxable
99,400 / 99,400.00
Clean & Green
Inactive
Homestead Status
Active
Farmstead Status
Inactive
Lerta Amount
0
Lerta Expiration Year
0
Residential Data
Card 1
Style
OLD STYLE
Basement
FULL
Year Built
1910
Exterior Wall
COMPOSITION
Total Living Area
1861
Full Baths
1
Half Baths
0
Fuel Type
GAS
Heating
CENTRAL
Heating System
FORCED AIR
Stories
1.5
Total Bedrooms
3
Total Family Rooms
0
Total Rooms
6
Fireplaces
0
Other Buildings & Yards
Description
Built
Width
Length
Area
FRAME OR CB DETACHED GARAGE
1960
24
26
624
Sales History
Sale Date
Type
Price
Book / Page
Other Info
10/10/2023
LAND & BUILDING
160000
2023 / 017264
SPECIAL WARRANTY DEED
5/16/2022
LAND & BUILDING
0
2022 / 010385
SPECIAL WARRANTY DEED
3/28/2006
LAND & BUILDING
72900
1315 / 1260
WARRANTY/SURVIVORSHIP DEED
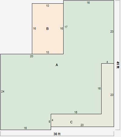
Parcel Sketches
Residential Card 1
A
MAIN
972 square feet
B
1S FR ONE STORY FRAME
160 square feet
C
OFP OPEN FRAME PORCH
144 square feet
Parcel Images