Elected Officials
Courts
Departments
Initiatives
Open Government
About
Login / Register
Home
/
Property & Tax Records
/
Property Records
/
Property & Tax Search
/
Parcel Profile
/
Print View
Search for Another Parcel
Parcel Profile
Historical Card
Sketches
Photos
Tax Map
Taxes
Print View
Print This Page
Address: 2380 E CENTER ST
Parcel: 34003003000700
Parcel Profile
Address
2380 | E | CENTER | ST
Street Status
PAVED
School District
FORT LEBOEUF SCHOOL
Acreage
1.4850
Classification
R
Land Use Code
SINGLE FAMILY
Legal Description
2380 E CENTER ST 1.485 AC NET | 1.525 AC GROSS
Square Feet
2238
Topo
LEVEL
Utility
GAS | WELL | SEPTIC
Zoning
Please contact your municipal zoning officer
Deed Book
2015
Deed Page
020777
2026 Tax Values
Land Value / Taxable
26,400 / 26,400.00
Building Value / Taxable
75,800 / 75,800.00
Total Value / Taxable
102,200 / 102,200.00
Clean & Green
Inactive
Homestead Status
Inactive
Farmstead Status
Inactive
Lerta Amount
0
Lerta Expiration Year
0
Residential Data
Card 1
Style
OLD STYLE
Basement
FULL
Year Built
1900
Exterior Wall
ALUMINUM/VINYL
Total Living Area
2238
Full Baths
1
Half Baths
1
Fuel Type
GAS
Heating
CENTRAL
Heating System
FORCED AIR
Stories
2.0
Total Bedrooms
5
Total Family Rooms
0
Total Rooms
8
Fireplaces
0
Other Buildings & Yards
Description
Built
Width
Length
Area
FLAT BARN
1900
18
24
432
Sales History
Sale Date
Type
Price
Book / Page
Other Info
9/21/2015
LAND & BUILDING
0
2015 / 020777
WARRANTY/SURVIVORSHIP DEED
5/25/1995
LAND & BUILDING
66000
385 / 449
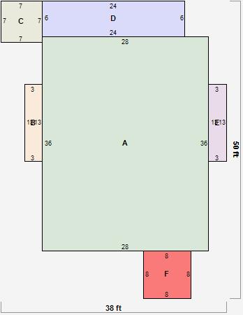
Parcel Sketches
Residential Card 1
A
MAIN
1008 square feet
B
UNFIN BSMT BASEMENT UNFINISHED FRBAY FRAME BAY
39 square feet
C
WDDCK WOOD DECKS
49 square feet
D
1S FR ONE STORY FRAME
144 square feet
E
UNFIN BSMT BASEMENT UNFINISHED FRBAY FRAME BAY
39 square feet
F
WDDCK WOOD DECKS
64 square feet
Parcel Images
Please note:
this tab is for informational purposes only and may not show all delinquencies, see the Taxes tab for more accurate delinquent taxes due.