Address: 14452 DEPOT ST   Parcel: 34003004000200
Parcel Profile
Address14452 | DEPOT | ST
Street StatusPAVED
School DistrictFORT LEBOEUF SCHOOL
Acreage0.7312
ClassificationR
Land Use CodeSINGLE FAMILY
Legal Description14452 DEPOT ST 130 X 245.18
Square Feet2574
TopoLEVEL
UtilityGAS | WELL | SEPTIC
ZoningPlease contact your municipal zoning officer
Deed Book0057
Deed Page0281
2026 Tax Values
Land Value / Taxable24,100 / 24,100.00
Building Value / Taxable94,700 / 94,700.00
Total Value / Taxable118,800 / 118,800.00
Clean & GreenInactive
Homestead StatusActive
Farmstead StatusInactive
Lerta Amount0
Lerta Expiration Year0
Residential Data
Card 1
     StyleOLD STYLE
     BasementFULL
     Year Built1920
     Exterior WallALUMINUM/VINYL
     Total Living Area2574
     Full Baths1
     Half Baths1
     Fuel TypeGAS
     HeatingCENTRAL
     Heating SystemFORCED AIR
     Stories2.0
     Total Bedrooms4
     Total Family Rooms0
     Total Rooms7
     Fireplaces0
Other Buildings & Yards
No OBY Data Found
Sales History
Sale DateTypePriceBook / PageOther Info
7/8/1988 00057 / 0281 



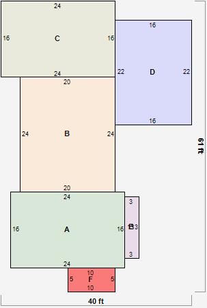
Parcel Sketches

Residential Card 1

Residential Card 1
AMAIN384 square feet
BUNFIN BSMT BASEMENT UNFINISHED 1S FR ONE STORY FRAME 1S FR ONE STORY FRAME 480 square feet
CUNFIN BSMT BASEMENT UNFINISHED 1S FR ONE STORY FRAME 1S FR ONE STORY FRAME 384 square feet
D FR GR FRAME GARAGE 352 square feet
E 1S FR ONE STORY FRAME 1S FR ONE STORY FRAME 39 square feet
F OFP OPEN FRAME PORCH 50 square feet

Parcel Images

parcel photo