Elected Officials
Courts
Departments
Initiatives
Open Government
About
Login / Register
Home
/
Property & Tax Records
/
Property Records
/
Property & Tax Search
/
Parcel Profile
/
Print View
Search for Another Parcel
Parcel Profile
Historical Card
Sketches
Photos
Tax Map
Taxes
Print View
Print This Page
Address: 2005 W CENTER ST
Parcel: 34005014000500
Parcel Profile
Address
2005 | W | CENTER | ST
Street Status
PAVED
School District
FORT LEBOEUF SCHOOL
Acreage
9.4221
Classification
F
Land Use Code
10-19.99 ACRES
Legal Description
2005 W CENTER ST 9.4421 AC NET CAL | 9.9269 AC GROSS CAL
Square Feet
2040
Topo
ABOVE STREET | ROLLING
Utility
GAS | WELL | SEPTIC
Zoning
Please contact your municipal zoning officer
Deed Book
1529
Deed Page
0509
2026 Tax Values
Land Value / Taxable
32,100 / 32,100.00
Building Value / Taxable
75,570 / 75,570.00
Total Value / Taxable
107,670 / 107,670.00
Clean & Green
Inactive
Homestead Status
Active
Farmstead Status
Inactive
Lerta Amount
0
Lerta Expiration Year
0
Residential Data
Card 1
Style
OLD STYLE
Basement
PART
Year Built
1927
Exterior Wall
FRAME
Total Living Area
2040
Full Baths
1
Half Baths
1
Fuel Type
GAS
Heating
CENTRAL
Heating System
HOT WATER
Stories
2.0
Total Bedrooms
5
Total Family Rooms
0
Total Rooms
9
Fireplaces
0
Other Buildings & Yards
Description
Built
Width
Length
Area
FLAT BARN
1920
34
78
2652
FRAME OR CB DETACHED GARAGE
1927
22
24
528
ONE SIDE OPEN MTL POLE BLDG
1930
12
24
288
Sales History
Sale Date
Type
Price
Book / Page
Other Info
2/10/2014
0
2014 / 002483
10/31/2008
LAND & BUILDING
150000
1529 / 0509
DEED
1/1/1964
LAND & BUILDING
10079
897 / 648
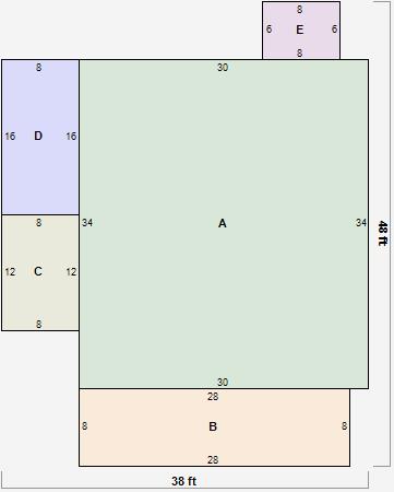
Parcel Sketches
Residential Card 1
A
MAIN
1020 square feet
B
OFP OPEN FRAME PORCH
224 square feet
C
MA STOOP/TERR MAS STOOP
96 square feet
D
OFP OPEN FRAME PORCH
128 square feet
E
OFP OPEN FRAME PORCH
48 square feet
Parcel Images
Please note:
this tab is for informational purposes only and may not show all delinquencies, see the Taxes tab for more accurate delinquent taxes due.