Elected Officials
Courts
Departments
Initiatives
Open Government
About
Login / Register
Home
/
Property & Tax Records
/
Property Records
/
Property & Tax Search
/
Parcel Profile
/
Print View
Search for Another Parcel
Parcel Profile
Historical Card
Sketches
Photos
Tax Map
Taxes
Print View
Print This Page
Address: 2333 GILLETT ST
Parcel: 34006015000600
Parcel Profile
Address
2333 | GILLETT | ST
Street Status
PAVED
School District
FORT LEBOEUF SCHOOL
Acreage
0.4230
Classification
R
Land Use Code
SINGLE FAMILY
Legal Description
2333 GILLETT ST 94X196
Square Feet
1537
Topo
LEVEL
Utility
GAS | WELL | SEPTIC
Zoning
Please contact your municipal zoning officer
Deed Book
1321
Deed Page
0588
2026 Tax Values
Land Value / Taxable
20,400 / 20,400.00
Building Value / Taxable
70,580 / 70,580.00
Total Value / Taxable
90,980 / 90,980.00
Clean & Green
Inactive
Homestead Status
Active
Farmstead Status
Inactive
Lerta Amount
0
Lerta Expiration Year
0
Residential Data
Card 1
Style
OLD STYLE
Basement
PART
Year Built
1900
Exterior Wall
COMPOSITION
Total Living Area
1537
Full Baths
1
Half Baths
0
Fuel Type
GAS
Heating
CENTRAL
Heating System
FORCED AIR
Stories
2.0
Total Bedrooms
3
Total Family Rooms
0
Total Rooms
8
Fireplaces
0
Other Buildings & Yards
Description
Built
Width
Length
Area
FOUR SIDE CLOSED WD POLE BLDG
1997
28
48
1344
Sales History
Sale Date
Type
Price
Book / Page
Other Info
9/25/1978
0
1321 / 0588
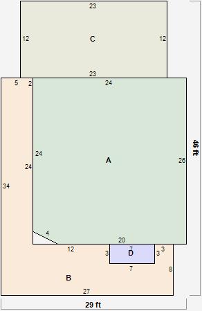
Parcel Sketches
Residential Card 1
A
MAIN
620 square feet
B
OFP OPEN FRAME PORCH
325 square feet
C
1S FR ONE STORY FRAME AT UN ATTIC-UNFINISHED
276 square feet
D
FRBAY FRAME BAY
21 square feet
Parcel Images
Please note:
this tab is for informational purposes only and may not show all delinquencies, see the Taxes tab for more accurate delinquent taxes due.