Elected Officials
Courts
Departments
Initiatives
Open Government
About
Login / Register
Home
/
Property & Tax Records
/
Property Records
/
Property & Tax Search
/
Parcel Profile
/
Print View
Search for Another Parcel
Parcel Profile
Historical Card
Sketches
Photos
Tax Map
Taxes
Print View
Print This Page
Address: 15 BANK ST
Parcel: 35001020001500
Parcel Profile
Address
15 | BANK | ST
Street Status
PAVED | SIDEWALK
School District
NORTH EAST SCHOOL
Acreage
0.3030
Classification
R
Land Use Code
SINGLE FAMILY
Legal Description
15 BANK ST 94 X 198 IRR
Square Feet
1872
Topo
LEVEL
Utility
ALL PUBLIC
Zoning
Please contact your municipal zoning officer
Deed Book
2017
Deed Page
024373
2026 Tax Values
Land Value / Taxable
31,600 / 31,600.00
Building Value / Taxable
87,100 / 87,100.00
Total Value / Taxable
118,700 / 118,700.00
Clean & Green
Inactive
Homestead Status
Active
Farmstead Status
Inactive
Lerta Amount
0
Lerta Expiration Year
0
Residential Data
Card 1
Style
OLD STYLE
Basement
PART
Year Built
1900
Exterior Wall
ALUMINUM/VINYL
Total Living Area
1872
Full Baths
2
Half Baths
0
Fuel Type
GAS
Heating
CENTRAL
Heating System
FORCED AIR
Stories
2.0
Total Bedrooms
4
Total Family Rooms
0
Total Rooms
7
Fireplaces
0
Other Buildings & Yards
Description
Built
Width
Length
Area
FRAME OR CB DETACHED GARAGE
1985
32
36
1152
Sales History
Sale Date
Type
Price
Book / Page
Other Info
11/6/2017
LAND & BUILDING
0
2017 / 024373
SPECIAL WARRANTY DEED
9/8/1961
0
0845 / 0049
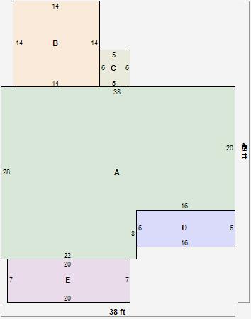
Parcel Sketches
Residential Card 1
A
MAIN
936 square feet
B
EFP ENCL FRAME PORCH
196 square feet
C
OFP OPEN FRAME PORCH
30 square feet
D
OFP OPEN FRAME PORCH
96 square feet
E
OFP OPEN FRAME PORCH
140 square feet
Parcel Images
Please note:
this tab is for informational purposes only and may not show all delinquencies, see the Taxes tab for more accurate delinquent taxes due.