Elected Officials
Courts
Departments
Initiatives
Open Government
About
Login / Register
Home
/
Property & Tax Records
/
Property Records
/
Property & Tax Search
/
Parcel Profile
/
Print View
Search for Another Parcel
Parcel Profile
Historical Card
Sketches
Photos
Tax Map
Taxes
Print View
Print This Page
Address: 42 GIBSON ST
Parcel: 35001020002400
Parcel Profile
Address
42 | GIBSON | ST
Street Status
PAVED | SIDEWALK
School District
NORTH EAST SCHOOL
Acreage
0.2765
Classification
R
Land Use Code
SINGLE FAMILY
Legal Description
42 GIBSON ST 71 X 165 IRR
Square Feet
1888
Topo
LEVEL
Utility
ALL PUBLIC
Zoning
Please contact your municipal zoning officer
Deed Book
1353
Deed Page
1332
2026 Tax Values
Land Value / Taxable
31,200 / 31,200.00
Building Value / Taxable
158,140 / 158,140.00
Total Value / Taxable
189,340 / 189,340.00
Clean & Green
Inactive
Homestead Status
Active
Farmstead Status
Inactive
Lerta Amount
0
Lerta Expiration Year
0
Residential Data
Card 1
Style
RANCH
Basement
FULL
Year Built
2006
Exterior Wall
ALUMINUM/VINYL
Total Living Area
1888
Full Baths
2
Half Baths
0
Fuel Type
GAS
Heating
CENTRAL
Heating System
FORCED AIR
Stories
1.0
Total Bedrooms
2
Total Family Rooms
1
Total Rooms
7
Fireplaces
0
Other Buildings & Yards
No OBY Data Found
Sales History
Sale Date
Type
Price
Book / Page
Other Info
8/18/2006
LAND & BUILDING
37900
1353 / 1332
WARRANTY/SURVIVORSHIP DEED
6/1/2006
LAND & BUILDING
25000
1332 / 2151
WARRANTY/SURVIVORSHIP DEED
12/5/2001
LAND & BUILDING
25000
831 / 1753
6/9/1998
LAND & BUILDING
9500
588 / 1242
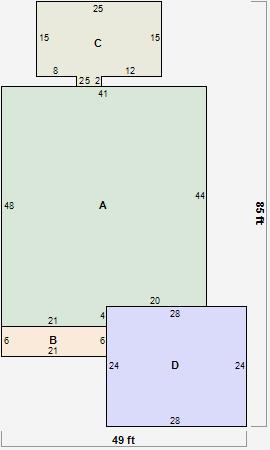
Parcel Sketches
Residential Card 1
A
MAIN
1888 square feet
B
OMP OPEN MASONRY PORCH
126 square feet
C
MA_PT CONC/MAS PATIO
385 square feet
D
FR GR FRAME GARAGE
672 square feet
Parcel Images
Please note:
this tab is for informational purposes only and may not show all delinquencies, see the Taxes tab for more accurate delinquent taxes due.