Elected Officials
Courts
Departments
Initiatives
Open Government
About
Login / Register
Home
/
Property & Tax Records
/
Property Records
/
Property & Tax Search
/
Parcel Profile
/
Print View
Search for Another Parcel
Parcel Profile
Historical Card
Sketches
Photos
Tax Map
Taxes
Print View
Print This Page
Address: 62 GIBSON ST
Parcel: 35001020003000
Parcel Profile
Address
62 | GIBSON | ST
Street Status
PAVED | SIDEWALK
School District
NORTH EAST SCHOOL
Acreage
0.3031
Classification
R
Land Use Code
SINGLE FAMILY
Legal Description
62 GIBSON ST 77.6 X 250.65 IRR
Square Feet
1394
Topo
LEVEL
Utility
ALL PUBLIC
Zoning
Please contact your municipal zoning officer
Deed Book
0379
Deed Page
1015
2026 Tax Values
Land Value / Taxable
31,700 / 31,700.00
Building Value / Taxable
90,770 / 90,770.00
Total Value / Taxable
122,470 / 122,470.00
Clean & Green
Inactive
Homestead Status
Active
Farmstead Status
Inactive
Lerta Amount
0
Lerta Expiration Year
0
Residential Data
Card 1
Style
RANCH
Basement
FULL
Year Built
1963
Exterior Wall
ALUMINUM/VINYL
Total Living Area
1394
Full Baths
1
Half Baths
0
Fuel Type
GAS
Heating
CENTRAL
Heating System
FORCED AIR
Stories
1.0
Total Bedrooms
2
Total Family Rooms
0
Total Rooms
6
Fireplaces
1
Other Buildings & Yards
No OBY Data Found
Sales History
Sale Date
Type
Price
Book / Page
Other Info
4/13/1995
LAND & BUILDING
95000
0379 / 1015
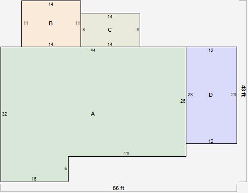
Parcel Sketches
Residential Card 1
A
MAIN
1240 square feet
B
1S FR ONE STORY FRAME
154 square feet
C
OFP OPEN FRAME PORCH
112 square feet
D
FR GR FRAME GARAGE
276 square feet
Parcel Images
Please note:
this tab is for informational purposes only and may not show all delinquencies, see the Taxes tab for more accurate delinquent taxes due.