Elected Officials
Courts
Departments
Initiatives
Open Government
About
Login / Register
Home
/
Property & Tax Records
/
Property Records
/
Property & Tax Search
/
Parcel Profile
/
Print View
Search for Another Parcel
Parcel Profile
Historical Card
Sketches
Photos
Tax Map
Taxes
Print View
Print This Page
Address: 58 W MAIN ST
Parcel: 35001021002300
Parcel Profile
Address
58 | W | MAIN | ST
Street Status
PAVED | SIDEWALK
School District
NORTH EAST SCHOOL
Acreage
0.3355
Classification
R
Land Use Code
SINGLE FAMILY
Legal Description
58 W MAIN ST 90 X 183.10 IRR
Square Feet
3951
Topo
LEVEL
Utility
ALL PUBLIC
Zoning
Please contact your municipal zoning officer
Deed Book
2024
Deed Page
007991
2026 Tax Values
Land Value / Taxable
32,200 / 32,200.00
Building Value / Taxable
193,800 / 193,800.00
Total Value / Taxable
226,000 / 226,000.00
Clean & Green
Inactive
Homestead Status
Active
Farmstead Status
Inactive
Lerta Amount
0
Lerta Expiration Year
0
Residential Data
Card 1
Style
OLD STYLE
Basement
FULL
Year Built
1900
Exterior Wall
FRAME
Total Living Area
3951
Full Baths
1
Half Baths
1
Fuel Type
GAS
Heating
CENTRAL
Heating System
HOT WATER
Stories
2.0
Total Bedrooms
4
Total Family Rooms
0
Total Rooms
10
Fireplaces
2
Other Buildings & Yards
Description
Built
Width
Length
Area
FRAME OR CB DETACHED GARAGE
1930
20
30
600
CONCRET PATIO, DETACHED
1985
0
0
600
Sales History
Sale Date
Type
Price
Book / Page
Other Info
5/29/2024
LAND & BUILDING
445000
2024 / 007991
DEED
10/19/2000
LAND & BUILDING
265000
0733 / 0145
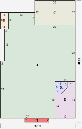
Parcel Sketches
Residential Card 1
A
MAIN
1560 square feet
B
OFP OPEN FRAME PORCH
32 square feet
C
OFP OPEN FRAME PORCH
240 square feet
D
EFP ENCL FRAME PORCH
32 square feet
E
OFP OPEN FRAME PORCH 1S FR ONE STORY FRAME
149 square feet
F
UNFIN BSMT BASEMENT UNFINISHED FRBAY FRAME BAY FRBAY FRAME BAY AT FN ATTIC-FINISHED
24 square feet
Parcel Images
Please note:
this tab is for informational purposes only and may not show all delinquencies, see the Taxes tab for more accurate delinquent taxes due.