Elected Officials
Courts
Departments
Initiatives
Open Government
About
Login / Register
Home
/
Property & Tax Records
/
Property Records
/
Property & Tax Search
/
Parcel Profile
/
Print View
Search for Another Parcel
Parcel Profile
Historical Card
Sketches
Photos
Tax Map
Taxes
Print View
Print This Page
Address: 88 W MAIN ST
Parcel: 35001021003100
Parcel Profile
Address
88 | W | MAIN | ST
Street Status
PAVED | SIDEWALK
School District
NORTH EAST SCHOOL
Acreage
0.4585
Classification
R
Land Use Code
MULTIPLE DWELLINGS
Legal Description
88 W MAIN ST 74.5 X 275 IRR
Square Feet
3948
Topo
LEVEL
Utility
ALL PUBLIC
Zoning
Please contact your municipal zoning officer
Deed Book
1568
Deed Page
0378
2026 Tax Values
Land Value / Taxable
34,500 / 34,500.00
Building Value / Taxable
60,180 / 60,180.00
Total Value / Taxable
94,680 / 94,680.00
Clean & Green
Inactive
Homestead Status
Inactive
Farmstead Status
Inactive
Lerta Amount
0
Lerta Expiration Year
0
Residential Data
Card 1
Style
OLD STYLE
Basement
FULL
Year Built
1900
Exterior Wall
BRICK
Total Living Area
2496
Full Baths
2
Half Baths
0
Fuel Type
GAS
Heating
CENTRAL
Heating System
FORCED AIR
Stories
2.0
Total Bedrooms
4
Total Family Rooms
0
Total Rooms
10
Fireplaces
0
Card 2
Style
OLD STYLE
Basement
FULL
Year Built
1930
Exterior Wall
COMPOSITION
Total Living Area
1452
Full Baths
1
Half Baths
0
Fuel Type
GAS
Heating
CENTRAL
Heating System
FORCED AIR
Stories
2.0
Total Bedrooms
3
Total Family Rooms
0
Total Rooms
6
Fireplaces
0
Other Buildings & Yards
Description
Built
Width
Length
Area
BRICK OR STONE DETACHED GAR.
1930
18
20
360
Sales History
Sale Date
Type
Price
Book / Page
Other Info
6/11/2009
LAND & BUILDING
45000
1568 / 0378
WARRANTY/SURVIVORSHIP DEED
11/10/2003
LAND & BUILDING
0
1085 / 0352
SPECIAL WARRANTY DEED
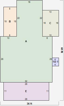
Parcel Sketches
Residential Card 1
A
MAIN
1248 square feet
B
EFP ENCL FRAME PORCH
144 square feet
C
EFP ENCL FRAME PORCH EMP ENCL MASONRY PORCH
160 square feet
D
MA STOOP/TERR MAS STOOP
20 square feet
E
EMP ENCL MASONRY PORCH
308 square feet
Residential Card 2
A
MAIN
630 square feet
B
1S FR ONE STORY FRAME 1S FR ONE STORY FRAME
96 square feet
Parcel Images
Please note:
this tab is for informational purposes only and may not show all delinquencies, see the Taxes tab for more accurate delinquent taxes due.