Elected Officials
Courts
Departments
Initiatives
Open Government
About
Login / Register
Home
/
Property & Tax Records
/
Property Records
/
Property & Tax Search
/
Parcel Profile
/
Print View
Search for Another Parcel
Parcel Profile
Historical Card
Sketches
Photos
Tax Map
Taxes
Print View
Print This Page
Address: 96 W MAIN ST
Parcel: 35001021003300
Parcel Profile
Address
96 | W | MAIN | ST
Street Status
PAVED | SIDEWALK
School District
NORTH EAST SCHOOL
Acreage
0.3926
Classification
R
Land Use Code
SINGLE FAMILY
Legal Description
96 W MAIN ST 76.5 X 240.9 IRR
Square Feet
1936
Topo
LEVEL
Utility
ALL PUBLIC
Zoning
Please contact your municipal zoning officer
Deed Book
2017
Deed Page
025360
2026 Tax Values
Land Value / Taxable
33,300 / 33,300.00
Building Value / Taxable
87,530 / 87,530.00
Total Value / Taxable
120,830 / 120,830.00
Clean & Green
Inactive
Homestead Status
Active
Farmstead Status
Inactive
Lerta Amount
0
Lerta Expiration Year
0
Residential Data
Card 1
Style
OLD STYLE
Basement
PART
Year Built
1900
Exterior Wall
ALUMINUM/VINYL
Total Living Area
1936
Full Baths
1
Half Baths
0
Fuel Type
GAS
Heating
CENTRAL A/C
Heating System
FORCED AIR
Stories
2.0
Total Bedrooms
4
Total Family Rooms
1
Total Rooms
9
Fireplaces
0
Other Buildings & Yards
Description
Built
Width
Length
Area
FRAME OR CB DETACHED GARAGE
1950
20
24
480
FRAME OR CB DETACHED GARAGE
1990
20
24
480
Sales History
Sale Date
Type
Price
Book / Page
Other Info
11/17/2017
LAND & BUILDING
0
2017 / 025360
SPECIAL WARRANTY DEED
8/24/1968
0
0989 / 0033
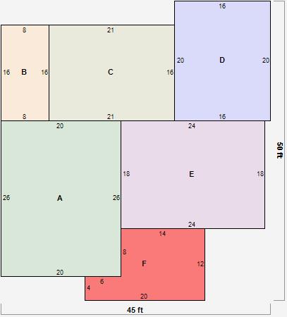
Parcel Sketches
Residential Card 1
A
MAIN
520 square feet
B
1S FR ONE STORY FRAME
128 square feet
C
UNFIN BSMT BASEMENT UNFINISHED 1S FR ONE STORY FRAME
336 square feet
D
OFP OPEN FRAME PORCH
320 square feet
E
UNFIN BSMT BASEMENT UNFINISHED 1S FR ONE STORY FRAME
432 square feet
F
OFP OPEN FRAME PORCH
192 square feet
Parcel Images
Please note:
this tab is for informational purposes only and may not show all delinquencies, see the Taxes tab for more accurate delinquent taxes due.