Elected Officials
Courts
Departments
Initiatives
Open Government
About
Login / Register
Home
/
Property & Tax Records
/
Property Records
/
Property & Tax Search
/
Parcel Profile
/
Print View
Search for Another Parcel
Parcel Profile
Historical Card
Sketches
Photos
Tax Map
Taxes
Print View
Print This Page
Address: 8 10 N MILL ST
Parcel: 35001021004000
Parcel Profile
Address
8 | 10 | N | MILL | ST
Street Status
PAVED | SIDEWALK
School District
NORTH EAST SCHOOL
Acreage
0.1212
Classification
R
Land Use Code
TWO FAMILY
Legal Description
8-10 N MILL ST 55 X 110 IRR
Square Feet
2320
Topo
LEVEL
Utility
ALL PUBLIC
Zoning
Please contact your municipal zoning officer
Deed Book
2025
Deed Page
019692
2026 Tax Values
Land Value / Taxable
26,400 / 26,400.00
Building Value / Taxable
80,060 / 80,060.00
Total Value / Taxable
106,460 / 106,460.00
Clean & Green
Inactive
Homestead Status
Active
Farmstead Status
Inactive
Lerta Amount
0
Lerta Expiration Year
0
Residential Data
Card 1
Style
OLD STYLE
Basement
FULL
Year Built
1920
Exterior Wall
FRAME
Total Living Area
2320
Full Baths
2
Half Baths
0
Fuel Type
GAS
Heating
CENTRAL
Heating System
FORCED AIR
Stories
2.0
Total Bedrooms
3
Total Family Rooms
0
Total Rooms
12
Fireplaces
0
Other Buildings & Yards
Description
Built
Width
Length
Area
FRAME OR CB DETACHED GARAGE
1920
20
20
400
Sales History
Sale Date
Type
Price
Book / Page
Other Info
11/4/2025
LAND & BUILDING
215000
2025 / 019692
SPECIAL WARRANTY DEED
9/30/2016
LAND & BUILDING
112000
2016 / 021299
SPECIAL WARRANTY DEED
5/19/2005
LAND & BUILDING
0
1235 / 0324
WARRANTY/SURVIVORSHIP DEED
3/17/1995
LAND & BUILDING
72000
376 / 647
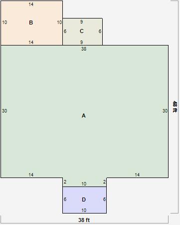
Parcel Sketches
Residential Card 1
A
MAIN
1160 square feet
B
MA STOOP/TERR MAS STOOP
140 square feet
C
EFP ENCL FRAME PORCH
54 square feet
D
OFP OPEN FRAME PORCH
60 square feet
Parcel Images
Please note:
this tab is for informational purposes only and may not show all delinquencies, see the Taxes tab for more accurate delinquent taxes due.