Elected Officials
Courts
Departments
Initiatives
Open Government
About
Login / Register
Home
/
Property & Tax Records
/
Property Records
/
Property & Tax Search
/
Parcel Profile
/
Print View
Search for Another Parcel
Parcel Profile
Historical Card
Sketches
Photos
Tax Map
Taxes
Print View
Print This Page
Address: 59 N LAKE ST
Parcel: 35002016000700
Parcel Profile
Address
59 | N | LAKE | ST
Street Status
PAVED | SIDEWALK
School District
NORTH EAST SCHOOL
Acreage
0.2847
Classification
R
Land Use Code
SINGLE FAMILY
Legal Description
59 N LAKE ST 93.5 X 148
Square Feet
3098
Topo
LEVEL
Utility
ALL PUBLIC
Zoning
Please contact your municipal zoning officer
Deed Book
2022
Deed Page
001167
2026 Tax Values
Land Value / Taxable
31,300 / 31,300.00
Building Value / Taxable
145,900 / 145,900.00
Total Value / Taxable
177,200 / 177,200.00
Clean & Green
Inactive
Homestead Status
Active
Farmstead Status
Inactive
Lerta Amount
0
Lerta Expiration Year
0
Residential Data
Card 1
Style
OLD STYLE
Basement
FULL
Year Built
1920
Exterior Wall
FRAME
Total Living Area
3098
Full Baths
2
Half Baths
1
Fuel Type
GAS
Heating
CENTRAL
Heating System
HOT WATER
Stories
2.0
Total Bedrooms
5
Total Family Rooms
0
Total Rooms
8
Fireplaces
1
Other Buildings & Yards
Description
Built
Width
Length
Area
FRAME OR CB DETACHED GARAGE
1930
12
22
264
Sales History
Sale Date
Type
Price
Book / Page
Other Info
1/18/2022
LAND & BUILDING
185000
2022 / 001167
SPECIAL WARRANTY DEED
2/14/2019
LAND & BUILDING
155000
2019 / 002681
DEED
6/24/1985
0
1584 / 0549
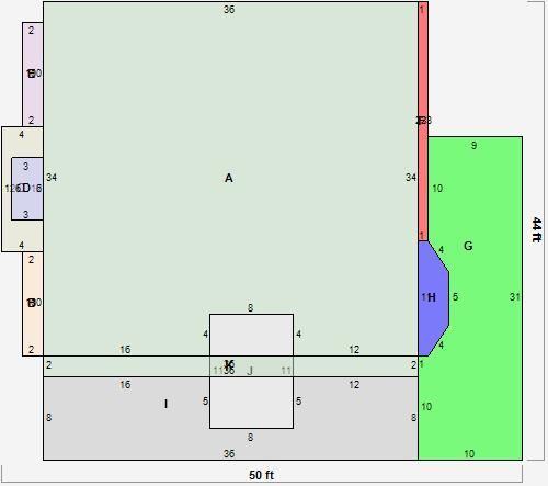
Parcel Sketches
Residential Card 1
A
MAIN
1192 square feet
B
FROVR FRAME OVERHANG
20 square feet
C
FROVR FRAME OVERHANG AT UN ATTIC-UNFINISHED
48 square feet
D
MA STOOP/TERR MAS STOOP
18 square feet
E
FROVR FRAME OVERHANG
20 square feet
F
FROVR FRAME OVERHANG
23 square feet
G
OFP OPEN FRAME PORCH
273 square feet
H
FRBAY FRAME BAY FROVR FRAME OVERHANG
27 square feet
I
MA_PT CONC/MAS PATIO
248 square feet
J
OFP OPEN FRAME PORCH
88 square feet
K
FROVR FRAME OVERHANG
72 square feet
Parcel Images
Please note:
this tab is for informational purposes only and may not show all delinquencies, see the Taxes tab for more accurate delinquent taxes due.