Elected Officials
Courts
Departments
Initiatives
Open Government
About
Login / Register
Home
/
Property & Tax Records
/
Property Records
/
Property & Tax Search
/
Parcel Profile
/
Print View
Search for Another Parcel
Parcel Profile
Historical Card
Sketches
Photos
Tax Map
Taxes
Print View
Print This Page
Address: 43 PARK ST
Parcel: 35002019000200
Parcel Profile
Address
43 | PARK | ST
Street Status
PAVED | SIDEWALK
School District
NORTH EAST SCHOOL
Acreage
0.2915
Classification
R
Land Use Code
SINGLE FAMILY
Legal Description
43 PARK ST 68.64 X 185
Square Feet
4200
Topo
LEVEL
Utility
ALL PUBLIC
Zoning
Please contact your municipal zoning officer
Deed Book
2022
Deed Page
000659
2026 Tax Values
Land Value / Taxable
31,400 / 31,400.00
Building Value / Taxable
229,500 / 229,500.00
Total Value / Taxable
260,900 / 260,900.00
Clean & Green
Inactive
Homestead Status
Inactive
Farmstead Status
Inactive
Lerta Amount
0
Lerta Expiration Year
0
Residential Data
Card 1
Style
COLONIAL
Basement
FULL
Year Built
1925
Exterior Wall
BRICK
Total Living Area
4200
Full Baths
2
Half Baths
1
Fuel Type
GAS
Heating
CENTRAL A/C
Heating System
FORCED AIR
Stories
2.0
Total Bedrooms
6
Total Family Rooms
1
Total Rooms
12
Fireplaces
3
Other Buildings & Yards
Description
Built
Width
Length
Area
FRAME OR CB DETACHED GARAGE
1945
25
42
1050
CONCRET PATIO, DETACHED
1945
0
0
1353
Sales History
Sale Date
Type
Price
Book / Page
Other Info
1/10/2022
LAND & BUILDING
270000
2022 / 000659
FIDUCIARY DEED
6/14/1996
LAND & BUILDING
247500
0445 / 1551
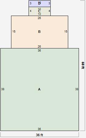
Parcel Sketches
Residential Card 1
A
MAIN
1368 square feet
B
1SMAS MASONRY 1SMAS MASONRY
390 square feet
C
EFP ENCL FRAME PORCH
40 square feet
D
MA_PT CONC/MAS PATIO
30 square feet
Parcel Images
Please note:
this tab is for informational purposes only and may not show all delinquencies, see the Taxes tab for more accurate delinquent taxes due.