Elected Officials
Courts
Departments
Initiatives
Open Government
About
Login / Register
Home
/
Property & Tax Records
/
Property Records
/
Property & Tax Search
/
Parcel Profile
/
Print View
Search for Another Parcel
Parcel Profile
Historical Card
Sketches
Photos
Tax Map
Taxes
Print View
Print This Page
Address: 25 PARK ST
Parcel: 35002019000700
Parcel Profile
Address
25 | PARK | ST
Street Status
PAVED | SIDEWALK
School District
NORTH EAST SCHOOL
Acreage
0.2900
Classification
R
Land Use Code
SINGLE FAMILY
Legal Description
25 PARK ST 82.5 X 160.05
Square Feet
3448
Topo
LEVEL
Utility
ALL PUBLIC
Zoning
Please contact your municipal zoning officer
Deed Book
2024
Deed Page
011948
2026 Tax Values
Land Value / Taxable
31,400 / 31,400.00
Building Value / Taxable
160,000 / 160,000.00
Total Value / Taxable
191,400 / 191,400.00
Clean & Green
Inactive
Homestead Status
Active
Farmstead Status
Inactive
Lerta Amount
0
Lerta Expiration Year
0
Residential Data
Card 1
Style
VICTORIAN
Basement
FULL
Year Built
1905
Exterior Wall
FRAME
Total Living Area
3448
Full Baths
4
Half Baths
0
Fuel Type
GAS
Heating
CENTRAL
Heating System
FORCED AIR
Stories
2.0
Total Bedrooms
5
Total Family Rooms
0
Total Rooms
8
Fireplaces
2
Other Buildings & Yards
Description
Built
Width
Length
Area
FRAME OR CB DETACHED GARAGE
1930
12
18
216
Sales History
Sale Date
Type
Price
Book / Page
Other Info
8/1/2024
LAND & BUILDING
240000
2024 / 011948
SPECIAL WARRANTY DEED
11/15/2004
LAND & BUILDING
227000
1189 / 2026
WARRANTY/SURVIVORSHIP DEED
6/25/1998
LAND & BUILDING
127000
571 / 665
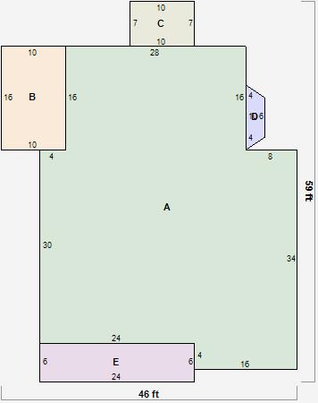
Parcel Sketches
Residential Card 1
A
MAIN
1712 square feet
B
EFP ENCL FRAME PORCH
160 square feet
C
OFP OPEN FRAME PORCH
70 square feet
D
UNFIN BSMT BASEMENT UNFINISHED FRBAY FRAME BAY
24 square feet
E
OFP OPEN FRAME PORCH
144 square feet
Parcel Images
Please note:
this tab is for informational purposes only and may not show all delinquencies, see the Taxes tab for more accurate delinquent taxes due.