Elected Officials
Courts
Departments
Initiatives
Open Government
About
Login / Register
Home
/
Property & Tax Records
/
Property Records
/
Property & Tax Search
/
Parcel Profile
/
Print View
Search for Another Parcel
Parcel Profile
Historical Card
Sketches
Photos
Tax Map
Taxes
Print View
Print This Page
Address: 16 S PEARL ST
Parcel: 35005027002300
Parcel Profile
Address
16 | S | PEARL | ST
Street Status
PAVED | SIDEWALK
School District
NORTH EAST SCHOOL
Acreage
0.4156
Classification
R
Land Use Code
SINGLE FAMILY
Legal Description
16 S PEARL ST 79.5 X 237.6
Square Feet
3030
Topo
LEVEL
Utility
ALL PUBLIC
Zoning
Please contact your municipal zoning officer
Deed Book
1453
Deed Page
2192
2026 Tax Values
Land Value / Taxable
33,700 / 33,700.00
Building Value / Taxable
118,800 / 118,800.00
Total Value / Taxable
152,500 / 152,500.00
Clean & Green
Inactive
Homestead Status
Inactive
Farmstead Status
Inactive
Lerta Amount
0
Lerta Expiration Year
0
Residential Data
Card 1
Style
OLD STYLE
Basement
PART
Year Built
1865
Exterior Wall
ALUMINUM/VINYL
Total Living Area
3030
Full Baths
3
Half Baths
0
Fuel Type
GAS
Heating
CENTRAL
Heating System
FORCED AIR
Stories
2.0
Total Bedrooms
5
Total Family Rooms
1
Total Rooms
10
Fireplaces
0
Other Buildings & Yards
No OBY Data Found
Sales History
Sale Date
Type
Price
Book / Page
Other Info
10/16/2007
LAND & BUILDING
160000
1453 / 2192
SPECIAL WARRANTY DEED
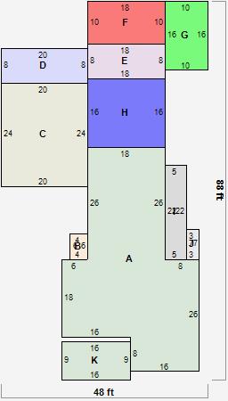
Parcel Sketches
Residential Card 1
A
MAIN
1172 square feet
B
EFP ENCL FRAME PORCH
24 square feet
C
FR GR FRAME GARAGE
480 square feet
D
FR UT FRAME UTILITY BUILDING
160 square feet
E
EFP ENCL FRAME PORCH
144 square feet
F
WDDCK WOOD DECKS
180 square feet
G
WDDCK WOOD DECKS
160 square feet
H
UNFIN BSMT BASEMENT UNFINISHED 1S FR ONE STORY FRAME 1S FR ONE STORY FRAME
288 square feet
I
UNFIN BSMT BASEMENT UNFINISHED 1S FR ONE STORY FRAME
110 square feet
J
OFP OPEN FRAME PORCH
21 square feet
K
OFP OPEN FRAME PORCH
144 square feet
Parcel Images
Please note:
this tab is for informational purposes only and may not show all delinquencies, see the Taxes tab for more accurate delinquent taxes due.