Elected Officials
Courts
Departments
Initiatives
Open Government
About
Login / Register
Home
/
Property & Tax Records
/
Property Records
/
Property & Tax Search
/
Parcel Profile
/
Print View
Search for Another Parcel
Parcel Profile
Historical Card
Sketches
Photos
Tax Map
Taxes
Print View
Print This Page
Address: 12 S PEARL ST
Parcel: 35005027002400
Parcel Profile
Address
12 | S | PEARL | ST
Street Status
PAVED | SIDEWALK
School District
NORTH EAST SCHOOL
Acreage
0.1353
Classification
R
Land Use Code
SINGLE FAMILY
Legal Description
12 S PEARL ST 45 X 237.6 IRR
Square Feet
1856
Topo
LEVEL
Utility
ALL PUBLIC
Zoning
Please contact your municipal zoning officer
Deed Book
0957
Deed Page
0343
2026 Tax Values
Land Value / Taxable
27,200 / 27,200.00
Building Value / Taxable
89,700 / 89,700.00
Total Value / Taxable
116,900 / 116,900.00
Clean & Green
Inactive
Homestead Status
Inactive
Farmstead Status
Inactive
Lerta Amount
0
Lerta Expiration Year
0
Residential Data
Card 1
Style
OLD STYLE
Basement
FULL
Year Built
1920
Exterior Wall
ALUMINUM/VINYL
Total Living Area
1856
Full Baths
1
Half Baths
1
Fuel Type
GAS
Heating
CENTRAL
Heating System
FORCED AIR
Stories
2.0
Total Bedrooms
3
Total Family Rooms
0
Total Rooms
8
Fireplaces
1
Other Buildings & Yards
No OBY Data Found
Sales History
Sale Date
Type
Price
Book / Page
Other Info
1/1/1967
0
0957 / 0343
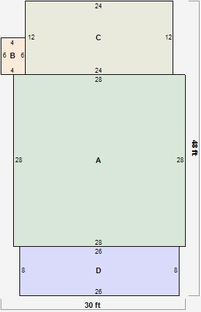
Parcel Sketches
Residential Card 1
A
MAIN
784 square feet
B
MA STOOP/TERR MAS STOOP
24 square feet
C
1S FR ONE STORY FRAME
288 square feet
D
OFP OPEN FRAME PORCH
208 square feet
Parcel Images
Please note:
this tab is for informational purposes only and may not show all delinquencies, see the Taxes tab for more accurate delinquent taxes due.