Elected Officials
Courts
Departments
Initiatives
Open Government
About
Login / Register
Home
/
Property & Tax Records
/
Property Records
/
Property & Tax Search
/
Parcel Profile
/
Print View
Search for Another Parcel
Parcel Profile
Historical Card
Sketches
Photos
Tax Map
Taxes
Print View
Print This Page
Address: 175 W MAIN ST
Parcel: 35006022000300
Parcel Profile
Address
175 | W | MAIN | ST
Street Status
PAVED | SIDEWALK
School District
NORTH EAST SCHOOL
Acreage
0.2209
Classification
R
Land Use Code
SINGLE FAMILY
Legal Description
175 W MAIN ST 52X153.5 IRR
Square Feet
1080
Topo
LEVEL
Utility
ALL PUBLIC
Zoning
Please contact your municipal zoning officer
Deed Book
0144
Deed Page
0735
2026 Tax Values
Land Value / Taxable
27,100 / 27,100.00
Building Value / Taxable
63,260 / 63,260.00
Total Value / Taxable
90,360 / 90,360.00
Clean & Green
Inactive
Homestead Status
Active
Farmstead Status
Inactive
Lerta Amount
0
Lerta Expiration Year
0
Residential Data
Card 1
Style
OLD STYLE
Basement
FULL
Year Built
1910
Exterior Wall
ALUMINUM/VINYL
Total Living Area
1080
Full Baths
1
Half Baths
0
Fuel Type
GAS
Heating
CENTRAL
Heating System
FORCED AIR
Stories
2.0
Total Bedrooms
3
Total Family Rooms
0
Total Rooms
6
Fireplaces
0
Other Buildings & Yards
Description
Built
Width
Length
Area
FRAME OR CB DETACHED GARAGE
1910
17
18
306
Sales History
Sale Date
Type
Price
Book / Page
Other Info
11/21/1990
0
0144 / 0735
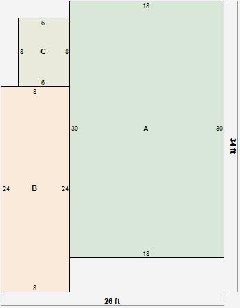
Parcel Sketches
Residential Card 1
A
MAIN
540 square feet
B
EFP ENCL FRAME PORCH
192 square feet
C
OFP OPEN FRAME PORCH
48 square feet
Parcel Images
Please note:
this tab is for informational purposes only and may not show all delinquencies, see the Taxes tab for more accurate delinquent taxes due.