Elected Officials
Courts
Departments
Initiatives
Open Government
About
Login / Register
Home
/
Property & Tax Records
/
Property Records
/
Property & Tax Search
/
Parcel Profile
/
Print View
Search for Another Parcel
Parcel Profile
Historical Card
Sketches
Photos
Tax Map
Taxes
Print View
Print This Page
Address: 169 W MAIN ST
Parcel: 35006022000600
Parcel Profile
Address
169 | W | MAIN | ST
Street Status
PAVED | SIDEWALK
School District
NORTH EAST SCHOOL
Acreage
0.1954
Classification
R
Land Use Code
SINGLE FAMILY
Legal Description
169 W MAIN 111.25X194.25X153.5
Square Feet
1376
Topo
LEVEL
Utility
ALL PUBLIC
Zoning
Please contact your municipal zoning officer
Deed Book
1077
Deed Page
0491
2026 Tax Values
Land Value / Taxable
26,700 / 26,700.00
Building Value / Taxable
74,100 / 74,100.00
Total Value / Taxable
100,800 / 100,800.00
Clean & Green
Inactive
Homestead Status
Active
Farmstead Status
Inactive
Lerta Amount
0
Lerta Expiration Year
0
Residential Data
Card 1
Style
OLD STYLE
Basement
FULL
Year Built
1930
Exterior Wall
ALUMINUM/VINYL
Total Living Area
1376
Full Baths
1
Half Baths
1
Fuel Type
GAS
Heating
CENTRAL
Heating System
FORCED AIR
Stories
2.0
Total Bedrooms
3
Total Family Rooms
0
Total Rooms
6
Fireplaces
0
Other Buildings & Yards
Description
Built
Width
Length
Area
FRAME OR CB DETACHED GARAGE
1930
20
28
560
Sales History
Sale Date
Type
Price
Book / Page
Other Info
9/6/1972
0
1077 / 0491
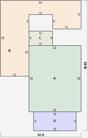
Parcel Sketches
Residential Card 1
A
MAIN
616 square feet
B
WDDCK WOOD DECKS
588 square feet
C
EFP ENCL FRAME PORCH
60 square feet
D
1S FR ONE STORY FRAME
144 square feet
Parcel Images