Elected Officials
Courts
Departments
Initiatives
Open Government
About
Login / Register
Home
/
Property & Tax Records
/
Property Records
/
Property & Tax Search
/
Parcel Profile
/
Print View
Search for Another Parcel
Parcel Profile
Historical Card
Sketches
Photos
Tax Map
Taxes
Print View
Print This Page
Address: 16 WEST ST
Parcel: 35006023001800
Parcel Profile
Address
16 | WEST | ST
Street Status
PAVED | SIDEWALK
School District
NORTH EAST SCHOOL
Acreage
0.6195
Classification
R
Land Use Code
SINGLE FAMILY
Legal Description
16 WEST ST 77.65 X 189.75 IRR
Square Feet
2935
Topo
LEVEL
Utility
ALL PUBLIC
Zoning
Please contact your municipal zoning officer
Deed Book
2018
Deed Page
006946
2026 Tax Values
Land Value / Taxable
37,400 / 37,400.00
Building Value / Taxable
129,430 / 129,430.00
Total Value / Taxable
166,830 / 166,830.00
Clean & Green
Inactive
Homestead Status
Active
Farmstead Status
Inactive
Lerta Amount
0
Lerta Expiration Year
0
Residential Data
Card 1
Style
OLD STYLE
Basement
FULL
Year Built
1920
Exterior Wall
BRICK
Total Living Area
2935
Full Baths
1
Half Baths
1
Fuel Type
GAS
Heating
CENTRAL A/C
Heating System
FORCED AIR
Stories
2.0
Total Bedrooms
5
Total Family Rooms
0
Total Rooms
10
Fireplaces
0
Other Buildings & Yards
Description
Built
Width
Length
Area
BRICK OR STONE DETACHED GAR.
1984
24
26
624
PLASTIC LINER POOL
1985
16
24
384
Sales History
Sale Date
Type
Price
Book / Page
Other Info
4/16/2018
LAND & BUILDING
0
2018 / 006946
QUIT CLAIM DEED
8/25/2005
LAND & BUILDING
0
1263 / 2197
SPECIAL WARRANTY DEED
8/5/1977
0
1274 / 0596
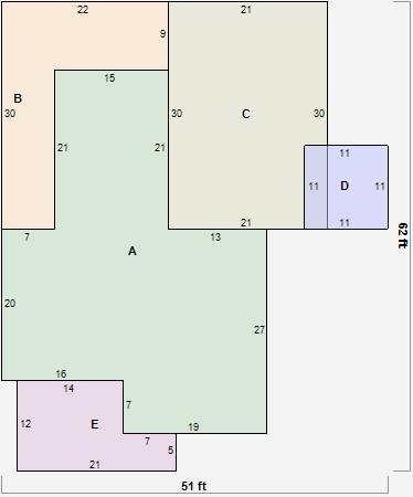
Parcel Sketches
Residential Card 1
A
MAIN
1148 square feet
B
1SMAS MASONRY
345 square feet
C
MA_PT CONC/MAS PATIO
630 square feet
D
OFP OPEN FRAME PORCH
121 square feet
E
1S FR ONE STORY FRAME
294 square feet
Parcel Images
Please note:
this tab is for informational purposes only and may not show all delinquencies, see the Taxes tab for more accurate delinquent taxes due.