Elected Officials
Courts
Departments
Initiatives
Open Government
About
Login / Register
Home
/
Property & Tax Records
/
Property Records
/
Property & Tax Search
/
Parcel Profile
/
Print View
Search for Another Parcel
Parcel Profile
Historical Card
Sketches
Photos
Tax Map
Taxes
Print View
Print This Page
Address: 5 CENTER ST
Parcel: 35006024002900
Parcel Profile
Address
5 | CENTER | ST
Street Status
PAVED | SIDEWALK
School District
NORTH EAST SCHOOL
Acreage
0.2436
Classification
R
Land Use Code
SINGLE FAMILY
Legal Description
5 CENTER ST 80.9X132
Square Feet
952
Topo
LEVEL
Utility
ALL PUBLIC
Zoning
Please contact your municipal zoning officer
Deed Book
1567
Deed Page
0406
2026 Tax Values
Land Value / Taxable
30,600 / 30,600.00
Building Value / Taxable
42,270 / 42,270.00
Total Value / Taxable
72,870 / 72,870.00
Clean & Green
Inactive
Homestead Status
Active
Farmstead Status
Inactive
Lerta Amount
0
Lerta Expiration Year
0
Residential Data
Card 1
Style
RANCH
Basement
FULL
Year Built
1920
Exterior Wall
ALUMINUM/VINYL
Total Living Area
952
Full Baths
1
Half Baths
0
Fuel Type
GAS
Heating
CENTRAL
Heating System
FORCED AIR
Stories
1.0
Total Bedrooms
2
Total Family Rooms
0
Total Rooms
4
Fireplaces
0
Other Buildings & Yards
Description
Built
Width
Length
Area
FRAME UTILITY SHED
2015
12
24
288
Sales History
Sale Date
Type
Price
Book / Page
Other Info
1/29/1985
0
1567 / 0406
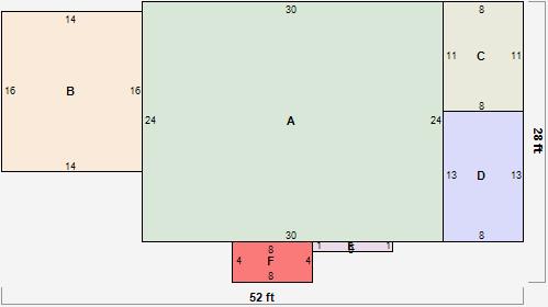
Parcel Sketches
Residential Card 1
A
MAIN
720 square feet
B
1S FR ONE STORY FRAME
224 square feet
C
WDDCK WOOD DECKS
88 square feet
D
OFP OPEN FRAME PORCH
104 square feet
E
FRBAY FRAME BAY
8 square feet
F
MA STOOP/TERR MAS STOOP
32 square feet
Parcel Images
Please note:
this tab is for informational purposes only and may not show all delinquencies, see the Taxes tab for more accurate delinquent taxes due.