Elected Officials
Courts
Departments
Initiatives
Open Government
About
Login / Register
Home
/
Property & Tax Records
/
Property Records
/
Property & Tax Search
/
Parcel Profile
/
Print View
Search for Another Parcel
Parcel Profile
Historical Card
Sketches
Photos
Tax Map
Taxes
Print View
Print This Page
Address: 36 LINCOLN ST
Parcel: 35006024003400
Parcel Profile
Address
36 | LINCOLN | ST
Street Status
PAVED | SIDEWALK
School District
NORTH EAST SCHOOL
Acreage
0.3444
Classification
R
Land Use Code
SINGLE FAMILY
Legal Description
36 LINCOLN ST 100X150
Square Feet
1148
Topo
LEVEL
Utility
ALL PUBLIC
Zoning
Please contact your municipal zoning officer
Deed Book
2014
Deed Page
013982
2026 Tax Values
Land Value / Taxable
32,400 / 32,400.00
Building Value / Taxable
69,700 / 69,700.00
Total Value / Taxable
102,100 / 102,100.00
Clean & Green
Inactive
Homestead Status
Active
Farmstead Status
Inactive
Lerta Amount
0
Lerta Expiration Year
0
Residential Data
Card 1
Style
RANCH
Basement
FULL
Year Built
1920
Exterior Wall
BRICK
Total Living Area
1148
Full Baths
1
Half Baths
0
Fuel Type
GAS
Heating
CENTRAL
Heating System
FORCED AIR
Stories
1.0
Total Bedrooms
2
Total Family Rooms
0
Total Rooms
5
Fireplaces
0
Other Buildings & Yards
No OBY Data Found
Sales History
Sale Date
Type
Price
Book / Page
Other Info
7/10/2014
LAND & BUILDING
108000
2014 / 013982
DEED
8/14/2003
LAND & BUILDING
0
1051 / 26
QUIT CLAIM DEED
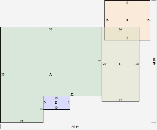
Parcel Sketches
Residential Card 1
A
MAIN
1148 square feet
B
OFP OPEN FRAME PORCH
255 square feet
C
UNFIN BSMT BASEMENT UNFINISHED MG/BG MASONRY/BRICK GARAGE
392 square feet
D
OFP OPEN FRAME PORCH
50 square feet
Parcel Images
Please note:
this tab is for informational purposes only and may not show all delinquencies, see the Taxes tab for more accurate delinquent taxes due.