Elected Officials
Courts
Departments
Initiatives
Open Government
About
Login / Register
Home
/
Property & Tax Records
/
Property Records
/
Property & Tax Search
/
Parcel Profile
/
Print View
Search for Another Parcel
Parcel Profile
Historical Card
Sketches
Photos
Tax Map
Taxes
Print View
Print This Page
Address: 24 S MILL ST
Parcel: 35006024003500
Parcel Profile
Address
24 | S | MILL | ST
Street Status
PAVED | SIDEWALK
School District
NORTH EAST SCHOOL
Acreage
0.1901
Classification
R
Land Use Code
SINGLE FAMILY
Legal Description
24 S MILL ST 75X110.51
Square Feet
1784
Topo
LEVEL
Utility
ALL PUBLIC
Zoning
Please contact your municipal zoning officer
Deed Book
1131
Deed Page
0063
2026 Tax Values
Land Value / Taxable
29,600 / 29,600.00
Building Value / Taxable
48,310 / 48,310.00
Total Value / Taxable
77,910 / 77,910.00
Clean & Green
Inactive
Homestead Status
Active
Farmstead Status
Inactive
Lerta Amount
0
Lerta Expiration Year
0
Residential Data
Card 1
Style
OLD STYLE
Basement
FULL
Year Built
1920
Exterior Wall
ALUMINUM/VINYL
Total Living Area
1784
Full Baths
1
Half Baths
0
Fuel Type
GAS
Heating
CENTRAL
Heating System
FORCED AIR
Stories
2.0
Total Bedrooms
5
Total Family Rooms
0
Total Rooms
9
Fireplaces
0
Other Buildings & Yards
No OBY Data Found
Sales History
Sale Date
Type
Price
Book / Page
Other Info
10/24/1974
0
1131 / 0063
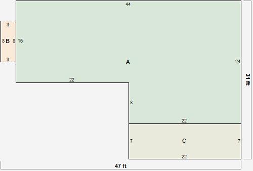
Parcel Sketches
Residential Card 1
A
MAIN
880 square feet
B
FRBAY FRAME BAY
24 square feet
C
OFP OPEN FRAME PORCH
154 square feet
Parcel Images
Please note:
this tab is for informational purposes only and may not show all delinquencies, see the Taxes tab for more accurate delinquent taxes due.