Elected Officials
Courts
Departments
Initiatives
Open Government
About
Login / Register
Home
/
Property & Tax Records
/
Property Records
/
Property & Tax Search
/
Parcel Profile
/
Print View
Search for Another Parcel
Parcel Profile
Historical Card
Sketches
Photos
Tax Map
Taxes
Print View
Print This Page
Address: 10 ROBINSON ST
Parcel: 35006026001900
Parcel Profile
Address
10 | ROBINSON | ST
Street Status
PAVED | SIDEWALK
School District
NORTH EAST SCHOOL
Acreage
0.2600
Classification
R
Land Use Code
SINGLE FAMILY
Legal Description
10 ROBINSON ST 73.75 X 153.5
Square Feet
2126
Topo
LEVEL
Utility
ALL PUBLIC
Zoning
Please contact your municipal zoning officer
Deed Book
2024
Deed Page
008243
2026 Tax Values
Land Value / Taxable
29,600 / 29,600.00
Building Value / Taxable
144,910 / 144,910.00
Total Value / Taxable
174,510 / 174,510.00
Clean & Green
Inactive
Homestead Status
Active
Farmstead Status
Inactive
Lerta Amount
0
Lerta Expiration Year
0
Residential Data
Card 1
Style
OLD STYLE
Basement
FULL
Year Built
1904
Exterior Wall
FRAME
Total Living Area
2126
Full Baths
1
Half Baths
1
Fuel Type
GAS
Heating
CENTRAL A/C
Heating System
HOT WATER
Stories
2.0
Total Bedrooms
4
Total Family Rooms
0
Total Rooms
8
Fireplaces
1
Other Buildings & Yards
Description
Built
Width
Length
Area
FOUR SIDE CLOSED WD POLE BLDG
2024
0
0
840
Sales History
Sale Date
Type
Price
Book / Page
Other Info
6/3/2024
LAND & BUILDING
325000
2024 / 008243
SPECIAL WARRANTY DEED
9/22/2022
LAND & BUILDING
249900
2022 / 020783
DEED
1/19/2018
LAND & BUILDING
0
2018 / 001264
QUIT CLAIM DEED
11/25/2002
LAND & BUILDING
167000
0949 / 1020
WARRANTY/SURVIVORSHIP DEED
12/3/1996
LAND & BUILDING
125000
474 / 190
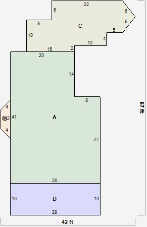
Parcel Sketches
Residential Card 1
A
MAIN
1036 square feet
B
FRBAY FRAME BAY FRBAY FRAME BAY
27 square feet
C
WDDCK WOOD DECKS
402 square feet
D
EFP ENCL FRAME PORCH
280 square feet
Parcel Images
Please note:
this tab is for informational purposes only and may not show all delinquencies, see the Taxes tab for more accurate delinquent taxes due.