Elected Officials
Courts
Departments
Initiatives
Open Government
About
Login / Register
Home
/
Property & Tax Records
/
Property Records
/
Property & Tax Search
/
Parcel Profile
/
Print View
Search for Another Parcel
Parcel Profile
Historical Card
Sketches
Photos
Tax Map
Taxes
Print View
Print This Page
Address: 49 CLINTON ST
Parcel: 35007049000100
Parcel Profile
Address
49 | CLINTON | ST
Street Status
PAVED
School District
NORTH EAST SCHOOL
Acreage
0.1267
Classification
R
Land Use Code
TWO FAMILY
Legal Description
49 CLINTON ST 66X83.6
Square Feet
2100
Topo
LEVEL
Utility
ALL PUBLIC
Zoning
Please contact your municipal zoning officer
Deed Book
0732
Deed Page
1649
2026 Tax Values
Land Value / Taxable
26,700 / 26,700.00
Building Value / Taxable
70,850 / 70,850.00
Total Value / Taxable
97,550 / 97,550.00
Clean & Green
Inactive
Homestead Status
Inactive
Farmstead Status
Inactive
Lerta Amount
0
Lerta Expiration Year
0
Residential Data
Card 1
Style
OLD STYLE
Basement
FULL
Year Built
1900
Exterior Wall
COMPOSITION
Total Living Area
2100
Full Baths
2
Half Baths
0
Fuel Type
GAS
Heating
CENTRAL
Heating System
FORCED AIR
Stories
2.0
Total Bedrooms
4
Total Family Rooms
0
Total Rooms
14
Fireplaces
0
Other Buildings & Yards
No OBY Data Found
Sales History
Sale Date
Type
Price
Book / Page
Other Info
11/7/2024
LAND & BUILDING
0
2024 / 018423
SPECIAL WARRANTY DEED
10/18/2000
0
0732 / 1649
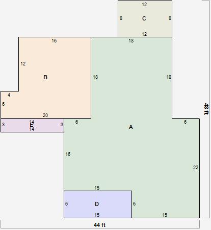
Parcel Sketches
Residential Card 1
A
MAIN
894 square feet
B
1S FR ONE STORY FRAME
312 square feet
C
OFP OPEN FRAME PORCH
96 square feet
D
OFP OPEN FRAME PORCH
90 square feet
E
OFP OPEN FRAME PORCH
42 square feet
Parcel Images
Please note:
this tab is for informational purposes only and may not show all delinquencies, see the Taxes tab for more accurate delinquent taxes due.