Elected Officials
Courts
Departments
Initiatives
Open Government
About
Login / Register
Home
/
Property & Tax Records
/
Property Records
/
Property & Tax Search
/
Parcel Profile
/
Print View
Search for Another Parcel
Parcel Profile
Historical Card
Sketches
Photos
Tax Map
Taxes
Print View
Print This Page
Address: 77 ROBINSON ST
Parcel: 35007049001000
Parcel Profile
Address
77 | ROBINSON | ST
Street Status
PAVED
School District
NORTH EAST SCHOOL
Acreage
0.2045
Classification
R
Land Use Code
TWO FAMILY
Legal Description
77 ROBINSON ST 54 X 166
Square Feet
2544
Topo
LEVEL
Utility
ALL PUBLIC
Zoning
Please contact your municipal zoning officer
Deed Book
2019
Deed Page
008772
2026 Tax Values
Land Value / Taxable
23,900 / 23,900.00
Building Value / Taxable
67,040 / 67,040.00
Total Value / Taxable
90,940 / 90,940.00
Clean & Green
Inactive
Homestead Status
Inactive
Farmstead Status
Inactive
Lerta Amount
0
Lerta Expiration Year
0
Residential Data
Card 1
Style
OLD STYLE
Basement
FULL
Year Built
1900
Exterior Wall
ALUMINUM/VINYL
Total Living Area
2544
Full Baths
2
Half Baths
1
Fuel Type
GAS
Heating
CENTRAL
Heating System
FORCED AIR
Stories
2.0
Total Bedrooms
4
Total Family Rooms
2
Total Rooms
11
Fireplaces
0
Other Buildings & Yards
Description
Built
Width
Length
Area
FRAME OR CB DETACHED GARAGE
1960
16
22
352
Sales History
Sale Date
Type
Price
Book / Page
Other Info
5/15/2019
LAND & BUILDING
72000
2019 / 008772
SPECIAL WARRANTY DEED
4/26/2006
LAND & BUILDING
60000
1322 / 1702
FIDUCIARY DEED
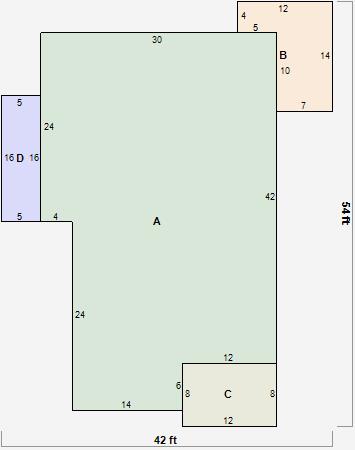
Parcel Sketches
Residential Card 1
A
MAIN
1272 square feet
B
WDDCK WOOD DECKS
118 square feet
C
EFP ENCL FRAME PORCH
96 square feet
D
OFP OPEN FRAME PORCH
80 square feet
Parcel Images
Please note:
this tab is for informational purposes only and may not show all delinquencies, see the Taxes tab for more accurate delinquent taxes due.