Elected Officials
Courts
Departments
Initiatives
Open Government
About
Login / Register
Home
/
Property & Tax Records
/
Property Records
/
Property & Tax Search
/
Parcel Profile
/
Print View
Search for Another Parcel
Parcel Profile
Historical Card
Sketches
Photos
Tax Map
Taxes
Print View
Print This Page
Address: 38 CENTER ST
Parcel: 35007049001500
Parcel Profile
Address
38 | CENTER | ST
Street Status
PAVED | SIDEWALK
School District
NORTH EAST SCHOOL
Acreage
0.1358
Classification
R
Land Use Code
SINGLE FAMILY
Legal Description
CENTER ST 89.65 X 66
Square Feet
1534
Topo
LEVEL
Utility
ALL PUBLIC
Zoning
Please contact your municipal zoning officer
Deed Book
2016
Deed Page
014279
2026 Tax Values
Land Value / Taxable
27,200 / 27,200.00
Building Value / Taxable
58,700 / 58,700.00
Total Value / Taxable
85,900 / 85,900.00
Clean & Green
Inactive
Homestead Status
Active
Farmstead Status
Inactive
Lerta Amount
0
Lerta Expiration Year
0
Residential Data
Card 1
Style
OLD STYLE
Basement
FULL
Year Built
1900
Exterior Wall
COMPOSITION
Total Living Area
1534
Full Baths
1
Half Baths
1
Fuel Type
GAS
Heating
CENTRAL
Heating System
NONE
Stories
2.0
Total Bedrooms
4
Total Family Rooms
0
Total Rooms
11
Fireplaces
0
Other Buildings & Yards
No OBY Data Found
Sales History
Sale Date
Type
Price
Book / Page
Other Info
7/8/2016
LAND & BUILDING
90000
2016 / 014279
SPECIAL WARRANTY DEED
9/6/2006
LAND & BUILDING
0
1359 / 1499
DEED
6/28/2005
LAND & BUILDING
0
1245 / 2198
QUIT CLAIM DEED
8/20/1996
0
0456 / 2248
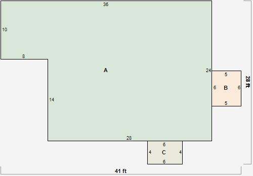
Parcel Sketches
Residential Card 1
A
MAIN
752 square feet
B
1S FR ONE STORY FRAME
30 square feet
C
OFP OPEN FRAME PORCH
24 square feet
Parcel Images
Please note:
this tab is for informational purposes only and may not show all delinquencies, see the Taxes tab for more accurate delinquent taxes due.