Elected Officials
Courts
Departments
Initiatives
Open Government
About
Login / Register
Home
/
Property & Tax Records
/
Property Records
/
Property & Tax Search
/
Parcel Profile
/
Print View
Search for Another Parcel
Parcel Profile
Historical Card
Sketches
Photos
Tax Map
Taxes
Print View
Print This Page
Address: 74 WALL ST
Parcel: 35007052001800
Parcel Profile
Address
74 | WALL | ST
Street Status
PAVED
School District
NORTH EAST SCHOOL
Acreage
0.1397
Classification
R
Land Use Code
SINGLE FAMILY
Legal Description
74 WALL ST 52X133 IRR
Square Feet
1896
Topo
LEVEL
Utility
ALL PUBLIC
Zoning
Please contact your municipal zoning officer
Deed Book
0752
Deed Page
0737
2026 Tax Values
Land Value / Taxable
24,700 / 24,700.00
Building Value / Taxable
56,200 / 56,200.00
Total Value / Taxable
80,900 / 80,900.00
Clean & Green
Inactive
Homestead Status
Active
Farmstead Status
Inactive
Lerta Amount
0
Lerta Expiration Year
0
Residential Data
Card 1
Style
OLD STYLE
Basement
PART
Year Built
1850
Exterior Wall
ALUMINUM/VINYL
Total Living Area
1896
Full Baths
1
Half Baths
0
Fuel Type
GAS
Heating
CENTRAL
Heating System
FORCED AIR
Stories
2.0
Total Bedrooms
3
Total Family Rooms
0
Total Rooms
8
Fireplaces
0
Other Buildings & Yards
Description
Built
Width
Length
Area
FRAME OR CB DETACHED GARAGE
1900
24
20
480
FRAME UTILITY SHED
1900
8
16
128
Sales History
Sale Date
Type
Price
Book / Page
Other Info
2/12/2001
LAND & BUILDING
60000
0752 / 0737
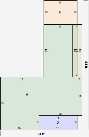
Parcel Sketches
Residential Card 1
A
MAIN
948 square feet
B
OFP OPEN FRAME PORCH
140 square feet
C
OFP OPEN FRAME PORCH
88 square feet
D
EFP ENCL FRAME PORCH
96 square feet
Parcel Images
Please note:
this tab is for informational purposes only and may not show all delinquencies, see the Taxes tab for more accurate delinquent taxes due.