Elected Officials
Courts
Departments
Initiatives
Open Government
About
Login / Register
Home
/
Property & Tax Records
/
Property Records
/
Property & Tax Search
/
Parcel Profile
/
Print View
Search for Another Parcel
Parcel Profile
Historical Card
Sketches
Photos
Tax Map
Taxes
Print View
Print This Page
Address: 95 CLINTON ST
Parcel: 35007053000400
Parcel Profile
Address
95 | CLINTON | ST
Street Status
PAVED
School District
NORTH EAST SCHOOL
Acreage
0.2458
Classification
R
Land Use Code
TWO FAMILY
Legal Description
95 CLINTON ST 75X139.95
Square Feet
2208
Topo
LEVEL
Utility
ALL PUBLIC
Zoning
Please contact your municipal zoning officer
Deed Book
2021
Deed Page
009709
2026 Tax Values
Land Value / Taxable
23,900 / 23,900.00
Building Value / Taxable
51,020 / 51,020.00
Total Value / Taxable
74,920 / 74,920.00
Clean & Green
Inactive
Homestead Status
Inactive
Farmstead Status
Inactive
Lerta Amount
0
Lerta Expiration Year
0
Residential Data
Card 1
Style
OLD STYLE
Basement
FULL
Year Built
1900
Exterior Wall
COMPOSITION
Total Living Area
2208
Full Baths
2
Half Baths
0
Fuel Type
GAS
Heating
CENTRAL
Heating System
FORCED AIR
Stories
2.0
Total Bedrooms
6
Total Family Rooms
0
Total Rooms
10
Fireplaces
0
Other Buildings & Yards
No OBY Data Found
Sales History
Sale Date
Type
Price
Book / Page
Other Info
4/21/2021
LAND & BUILDING
60000
2021 / 009709
SPECIAL WARRANTY DEED
12/13/2000
LAND & BUILDING
55900
0742 / 2066
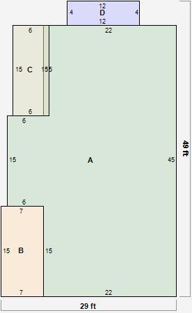
Parcel Sketches
Residential Card 1
A
MAIN
1080 square feet
B
EFP ENCL FRAME PORCH
105 square feet
C
EFP ENCL FRAME PORCH
90 square feet
D
1S FR ONE STORY FRAME
48 square feet
Parcel Images
Please note:
this tab is for informational purposes only and may not show all delinquencies, see the Taxes tab for more accurate delinquent taxes due.