Elected Officials
Courts
Departments
Initiatives
Open Government
About
Login / Register
Home
/
Property & Tax Records
/
Property Records
/
Property & Tax Search
/
Parcel Profile
/
Print View
Search for Another Parcel
Parcel Profile
Historical Card
Sketches
Photos
Tax Map
Taxes
Print View
Print This Page
Address: 41 WEST ST
Parcel: 35007054000600
Parcel Profile
Address
41 | WEST | ST
Street Status
PAVED
School District
NORTH EAST SCHOOL
Acreage
0.2050
Classification
R
Land Use Code
SINGLE FAMILY
Legal Description
41 WEST ST 47 X 190
Square Feet
884
Topo
LEVEL
Utility
ALL PUBLIC
Zoning
Please contact your municipal zoning officer
Deed Book
2019
Deed Page
020567
2026 Tax Values
Land Value / Taxable
29,900 / 29,900.00
Building Value / Taxable
29,300 / 29,300.00
Total Value / Taxable
59,200 / 59,200.00
Clean & Green
Inactive
Homestead Status
Active
Farmstead Status
Inactive
Lerta Amount
0
Lerta Expiration Year
0
Residential Data
Card 1
Style
BUNGALOW
Basement
PART
Year Built
1900
Exterior Wall
ALUMINUM/VINYL
Total Living Area
884
Full Baths
1
Half Baths
1
Fuel Type
GAS
Heating
CENTRAL
Heating System
FORCED AIR
Stories
1.0
Total Bedrooms
2
Total Family Rooms
0
Total Rooms
6
Fireplaces
0
Other Buildings & Yards
No OBY Data Found
Sales History
Sale Date
Type
Price
Book / Page
Other Info
10/9/2019
LAND & BUILDING
52000
2019 / 020567
SPECIAL WARRANTY DEED
7/3/1984
0
1542 / 0334
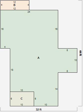
Parcel Sketches
Residential Card 1
A
MAIN
884 square feet
B
EFP ENCL FRAME PORCH
48 square feet
C
EFP ENCL FRAME PORCH
60 square feet
Parcel Images
Please note:
this tab is for informational purposes only and may not show all delinquencies, see the Taxes tab for more accurate delinquent taxes due.