Elected Officials
Courts
Departments
Initiatives
Open Government
About
Login / Register
Home
/
Property & Tax Records
/
Property Records
/
Property & Tax Search
/
Parcel Profile
/
Print View
Search for Another Parcel
Parcel Profile
Historical Card
Sketches
Photos
Tax Map
Taxes
Print View
Print This Page
Address: 201 S LAKE ST
Parcel: 35008055001100
Parcel Profile
Address
201 | S | LAKE | ST
Street Status
PAVED
School District
NORTH EAST SCHOOL
Acreage
0.1671
Classification
C
Land Use Code
RESTAURANTS, STORES (RETAIL)
Legal Description
201 S LAKE ST 80 X 56 IRR
Square Feet
3996
Topo
LEVEL
Utility
ALL PUBLIC
Zoning
Please contact your municipal zoning officer
Deed Book
1254
Deed Page
0508
2026 Tax Values
Land Value / Taxable
29,100 / 29,100.00
Building Value / Taxable
64,400 / 64,400.00
Total Value / Taxable
93,500 / 93,500.00
Clean & Green
Inactive
Homestead Status
Inactive
Farmstead Status
Inactive
Lerta Amount
0
Lerta Expiration Year
0
Commercial Data
Card 1
MIXED RES/COMM
Business Living Area - 3996
Year Built - 1890
Improvement Name - STRAW HAT DELI
Value - 67760
Other Buildings & Yards
No OBY Data Found
Sales History
Sale Date
Type
Price
Book / Page
Other Info
3/7/1977
0
1254 / 0508
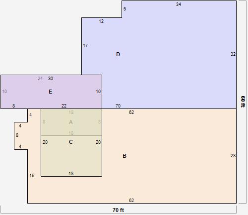
Parcel Sketches
Commercial Card 1
A
MAIN
14 square feet
B
MAIN
1768 square feet
C
MAIN
360 square feet
D
MAIN
1652 square feet
E
MAIN
216 square feet
Parcel Images
Please note:
this tab is for informational purposes only and may not show all delinquencies, see the Taxes tab for more accurate delinquent taxes due.