Elected Officials
Courts
Departments
Initiatives
Open Government
About
Login / Register
Home
/
Property & Tax Records
/
Property Records
/
Property & Tax Search
/
Parcel Profile
/
Print View
Search for Another Parcel
Parcel Profile
Historical Card
Sketches
Photos
Tax Map
Taxes
Print View
Print This Page
Address: 56 S PEARL ST
Parcel: 35010046002000
Parcel Profile
Address
56 | S | PEARL | ST
Street Status
PAVED | SIDEWALK
School District
NORTH EAST SCHOOL
Acreage
0.1118
Classification
R
Land Use Code
SINGLE FAMILY
Legal Description
56 S PEARL ST 42.5X122 IRR
Square Feet
1308
Topo
LEVEL
Utility
ALL PUBLIC
Zoning
Please contact your municipal zoning officer
Deed Book
2022
Deed Page
014943
2026 Tax Values
Land Value / Taxable
25,800 / 25,800.00
Building Value / Taxable
57,900 / 57,900.00
Total Value / Taxable
83,700 / 83,700.00
Clean & Green
Inactive
Homestead Status
Active
Farmstead Status
Inactive
Lerta Amount
0
Lerta Expiration Year
0
Residential Data
Card 1
Style
OLD STYLE
Basement
FULL
Year Built
1930
Exterior Wall
ALUMINUM/VINYL
Total Living Area
1308
Full Baths
1
Half Baths
0
Fuel Type
GAS
Heating
CENTRAL
Heating System
FORCED AIR
Stories
2.0
Total Bedrooms
3
Total Family Rooms
1
Total Rooms
6
Fireplaces
0
Other Buildings & Yards
Description
Built
Width
Length
Area
FRAME UTILITY SHED
1940
10
24
240
CONCRET PATIO, DETACHED
1940
0
0
36
Sales History
Sale Date
Type
Price
Book / Page
Other Info
7/12/2022
LAND & BUILDING
80000
2022 / 014943
SPECIAL WARRANTY DEED
6/15/2012
LAND & BUILDING
79900
2012 / 015570
SPECIAL WARRANTY DEED
11/26/2003
LAND & BUILDING
0
1090 / 0835
QUIT CLAIM DEED
1/2/1998
LAND & BUILDING
65000
536 / 1510
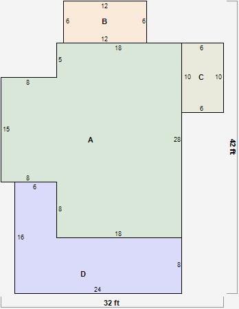
Parcel Sketches
Residential Card 1
A
MAIN
624 square feet
B
EFP ENCL FRAME PORCH
72 square feet
C
UNFIN BSMT BASEMENT UNFINISHED 1S FR ONE STORY FRAME
60 square feet
D
UNFIN BSMT BASEMENT UNFINISHED EFP ENCL FRAME PORCH
240 square feet
Parcel Images
Please note:
this tab is for informational purposes only and may not show all delinquencies, see the Taxes tab for more accurate delinquent taxes due.