Elected Officials
Courts
Departments
Initiatives
Open Government
About
Login / Register
Home
/
Property & Tax Records
/
Property Records
/
Property & Tax Search
/
Parcel Profile
/
Print View
Search for Another Parcel
Parcel Profile
Historical Card
Sketches
Photos
Tax Map
Taxes
Print View
Print This Page
Address: 72 N LAKE ST
Parcel: 36002006003800
Parcel Profile
Address
72 | N | LAKE | ST
Street Status
PAVED | SIDEWALK
School District
NORTH EAST SCHOOL
Acreage
0.4056
Classification
R
Land Use Code
SINGLE FAMILY
Legal Description
72 N LAKE ST 44.75 X 117
Square Feet
1416
Topo
LEVEL
Utility
ALL PUBLIC
Zoning
Please contact your municipal zoning officer
Deed Book
0521
Deed Page
0255
2026 Tax Values
Land Value / Taxable
23,700 / 23,700.00
Building Value / Taxable
95,700 / 95,700.00
Total Value / Taxable
119,400 / 119,400.00
Clean & Green
Inactive
Homestead Status
Active
Farmstead Status
Inactive
Lerta Amount
0
Lerta Expiration Year
0
Residential Data
Card 1
Style
OLD STYLE
Basement
FULL
Year Built
1910
Exterior Wall
ALUMINUM/VINYL
Total Living Area
1416
Full Baths
1
Half Baths
0
Fuel Type
GAS
Heating
CENTRAL A/C
Heating System
FORCED AIR
Stories
2.0
Total Bedrooms
3
Total Family Rooms
0
Total Rooms
6
Fireplaces
1
Other Buildings & Yards
Description
Built
Width
Length
Area
FRAME UTILITY SHED
2005
16
16
256
Sales History
Sale Date
Type
Price
Book / Page
Other Info
9/29/1997
LAND & BUILDING
83000
0521 / 0255
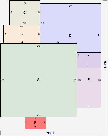
Parcel Sketches
Residential Card 1
A
MAIN
600 square feet
B
UNFIN BSMT BASEMENT UNFINISHED 1S FR ONE STORY FRAME
72 square feet
C
WDDCK WOOD DECKS
80 square feet
D
MA_PT CONC/MAS PATIO
324 square feet
E
UNFIN BSMT BASEMENT UNFINISHED 1S FR ONE STORY FRAME
144 square feet
F
EFP ENCL FRAME PORCH
28 square feet
Parcel Images
Please note:
this tab is for informational purposes only and may not show all delinquencies, see the Taxes tab for more accurate delinquent taxes due.